Eladó lakás Nyíregyháza, Belváros, 97 000 000 Ft

Leírás

Eladó sokoldalúan hasznosítható ingatlan Nyíregyháza belvárosában!
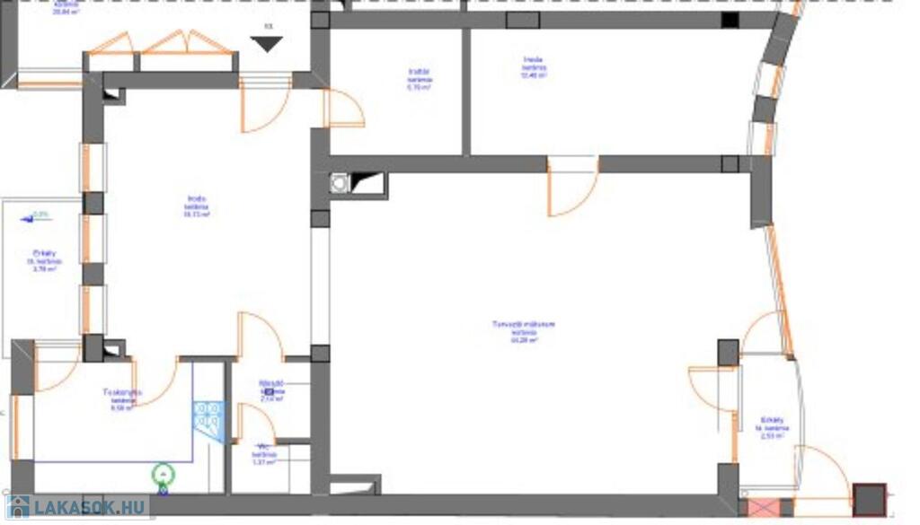
Nyíregyháza belvárosának frekventált részén kínálunk megvételre egy 93 m²-es, első emeleti, kiváló adottságokkal rendelkező ingatlant, amely lakásként és irodaként egyaránt ideális választás.
Az ingatlan három tágas szobával rendelkezik, kelet–nyugati tájolásának köszönhetően egész nap világos. A burkolatok parketta és járólap, a fűtés egyedi gázfűtés, ami gazdaságos fenntartást biztosít.
A komfortérzetet tovább növeli:


két nagyméretű erkély


két külön WC


három klímaberendezés


riasztórendszer


műanyag nyílászárók


Az ingatlanhoz két saját parkolóhely tartozik, ami belvárosi környezetben különösen nagy érték.
Az ingatlan berendezéssel együtt vagy anélkül is megvásárolható, így kiváló lehetőség:


irodai célra


lakóingatlanként


befektetésnek is


Rugalmasan alakítható, azonnal birtokba vehető, remek elhelyezkedés.
További információért és megtekintésért keressen bizalommal!
TELJESKÖRŰ, DÍJTALAN HITELÜGYINTÉZÉS!Az ingatlan azonosítója: 99611Érdeklődni: +3620/965-8200 Az ingatlan azonosítója: 99611 Érdeklődni: +3620/965-8200

Lakás részletei

Ár: 97 000 000 Ft
Méret: 93 négyzetméter
Azonosító: 11595732
Irodai azonosító: 99611
Városrész: Belváros
Emelet: 1. emelet
Építőanyag: Tégla
Fűtés jellege: Cirkó
Ingatlan állapota:
Építési év: 11-20 éves
Egész szobák: 3

Egyéb jellemzők

  • Lift

Így keressen lakást négy egyszerű lépésben. Csupán 2 perc, kötelezettségek nélkül!

Szűkítse a lakások
listáját
Válassza ki a megfelelő
lakást
Írjon a hirdetőnek
Várjon a visszahívásra