Az értékesítő:
Az Ön otthona
+36 20 965 8200

Eladó lakás Nyíregyháza, Belváros, 97 000 000 Ft, 93 négyzetméter

97 000 000 Ft
lakás, 93 négyzetméter
Építőanyag:
Tégla
Egész szobák:
3
Ingatlan állapota:
Azonosító:
11595732
Értékesítés típusa:
eladó
Ingatlan típusa:
lakás
Település:
Nyíregyháza
Alapterület:
93
Ár:
97 000 000 Ft
Emelet:
1. emelet
Fűtés jellege:
Cirkó
Építési év:
11-20 éves
Lift:
Nincs
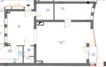
Eladó sokoldalúan hasznosítható ingatlan Nyíregyháza belvárosában! Nyíregyháza belvárosának frekventált részén kínálunk megvételre egy 93 m²-es, első emeleti, kiváló adottságokkal rendelkező ingatlant, amely lakásként és irodaként egyaránt ideális választás. Az ingatlan három tágas szobával rendelkezik, kelet–nyugati tájolásának köszönhetően egész nap világos. A burkolatok parketta és járólap, a fűtés egyedi gázfűtés, ami gazdaságos fenntartást biztosít. A komfortérzetet tovább növeli: két nagyméretű erkély két külön WC három klímaberendezés riasztórendszer műanyag nyílászárók Az ingatlanhoz két saját parkolóhely tartozik, ami belvárosi környezetben különösen nagy érték. Az ingatlan berendezéssel együtt vagy anélkül is megvásárolható, így kiváló lehetőség: irodai célra lakóingatlanként befektetésnek is Rugalmasan alakítható, azonnal birtokba vehető, remek elhelyezkedés. További információért és megtekintésért keressen bizalommal! TELJESKÖRŰ, DÍJTALAN HITELÜGYINTÉZÉS!Az ingatlan azonosítója: 99611Érdeklődni: +3620/965-8200 Az ingatlan azonosítója: 99611 Érdeklődni: +3620/965-8200
https://lakasok.hu/elado/lakas/nyiregyhaza/97-millio-ft;93-negyzetmeter;3-szoba;tegla-epitesu/11595732