Eladó lakás Miskolc, Belváros, 46 500 000 Ft

Leírás

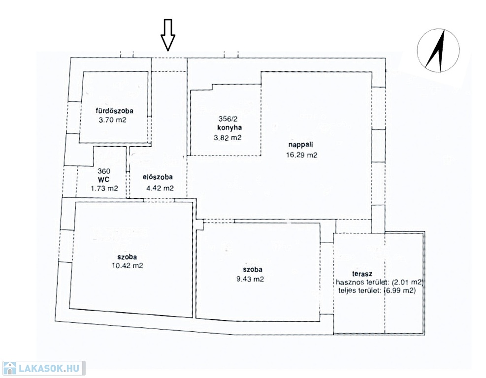
Miskolc belvárosában, kiváló környéken a Görgey utcában, 2012-ben, épült, földszint + 4 emelet szintmegosztású, téglaépítésű, kiváló lakóközösségű társasházban, 3. emeleti, 55 nm-es, nappali + 2 szobás, műanyag kétrétegű hőszigetelt nyílászárókkal felszerelt, kis rezsijű, mért házközponti fűtéses lakás, 6 m2-es terasszal, opcióként 1 db autóbeállóval és 1 db 10 m2-es tárolóval együtt eladó.

A lakáshoz tartozik egy távirányítós garázskapuval ellátott teremgarázsban lévő gépkocsi beálló is, melynek ára: 7 M

Tömegközlekedési és bevásárlási kapcsolata kiváló.

Helyiséglista:
- nappali-étkező-konyha, 2 szoba, fürdőszoba, WC, terasz 6 m2, tároló 10 m2

További információért kérem keressen telefonon!

Lakás részletei

Ár: 46 500 000 Ft
Méret: 55 négyzetméter
Azonosító: 11611814
Irodai azonosító: 4901
Cím: Görgey Artúr utca 4
Városrész: Belváros
Emelet: 3. emelet
Építőanyag: Tégla
Fűtés jellege: Házközponti (egyedi mérővel)
Ingatlan állapota: Kitűnő
Komfort fokozat: Összkomfort
Építési év: 11-20 éves
Elhelyezkedés: Társasház
Tulajdonviszony: Saját
Bútorozott: Bútorozott
Kilátás: utcai
Kert: Nincs
Egész szobák: 2
Nappalik: 1

Egyéb jellemzők

  • Erkély
  • Garázs
  • Klíma
  • Lift
  • Pince
  • Kertkapcsolat
  • Tároló
  • Kocsibeálló

Térkép


Így keressen lakást négy egyszerű lépésben. Csupán 2 perc, kötelezettségek nélkül!

Szűkítse a lakások
listáját
Válassza ki a megfelelő
lakást
Írjon a hirdetőnek
Várjon a visszahívásra