Az értékesítő:
Lőkös Zoltán
+36 70 429 5999

Eladó lakás Miskolc, Belváros, 46 500 000 Ft, 55 négyzetméter

46 500 000 Ft
lakás, 55 négyzetméter
Építőanyag:
Tégla
Egész szobák:
2
Komfort fokozat:
Összkomfort
Ingatlan állapota:
Kitűnő
Azonosító:
11611814
Értékesítés típusa:
eladó
Ingatlan típusa:
lakás
Település:
Miskolc
Alapterület:
55
Ár:
46 500 000 Ft
Tulajdonviszony:
Saját
Emelet:
3. emelet
Fűtés jellege:
Házközponti (egyedi mérővel)
Elhelyezkedés:
Társasház
Kilátás:
utcai
Építési év:
11-20 éves
Erkély:
Van
Kert:
Nincs
Kertkapcsolat:
Nincs
Kocsibeálló:
Van
Pince:
Van
Tároló:
Van
Lift:
Van
Klíma:
Nincs
Bútorozott:
Bútorozott
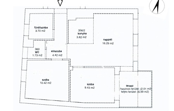
Miskolc belvárosában, kiváló környéken a Görgey utcában, 2012-ben, épült, földszint + 4 emelet szintmegosztású, téglaépítésű, kiváló lakóközösségű társasházban, 3. emeleti, 55 nm-es, nappali + 2 szobás, műanyag kétrétegű hőszigetelt nyílászárókkal felszerelt, kis rezsijű, mért házközponti fűtéses lakás, 6 m2-es terasszal, opcióként 1 db autóbeállóval és 1 db 10 m2-es tárolóval együtt eladó. A lakáshoz tartozik egy távirányítós garázskapuval ellátott teremgarázsban lévő gépkocsi beálló is, melynek ára: 7 M Tömegközlekedési és bevásárlási kapcsolata kiváló. Helyiséglista: - nappali-étkező-konyha, 2 szoba, fürdőszoba, WC, terasz 6 m2, tároló 10 m2 További információért kérem keressen telefonon!
https://lakasok.hu/elado/lakas/miskolc/47-millio-ft;55-negyzetmeter;2-szoba;tegla-epitesu/11611814