Az értékesítő:
Tóth György
+36 70 905 6752

Eladó lakás Zalaegerszeg, 89 662 000 Ft, 80 négyzetméter

89 662 000 Ft
lakás, 80 négyzetméter
Építőanyag:
Tégla
Egész szobák:
4
Ingatlan állapota:
Épülő
Azonosító:
11604760
Értékesítés típusa:
eladó
Ingatlan típusa:
lakás
Település:
Zalaegerszeg
Alapterület:
80
Ár:
89 662 000 Ft
Emelet:
1. emelet
Fűtés jellege:
Cirkó
Építési év:
Új építésű
Erkély:
Van
Lift:
Van
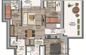
A Kerámia Lakópark korábbi ütemeinek sikeres lezárását követően 30 db változatos méretű lakással egészül ki a lakópark. A négy lépcsőházból álló társasházában, két épülettömbben 30 db lakás kerül megépítésre, alagsori teremgarázs, magasföldszint, 3 emeletes kialakításban. Az igényes, lifttel ellátott lépcsőházakban emeletenként 4 db kettő égtájolású változatos méretű lakás, a „C” jelzésű épület negyedik emeletén pedig 2 db három égtájolású nagyobb alapterületű penthouse lakás létesül. A körbekerített telken belüli parkolást az alagsori szinten kialakításra kerülő teremgarázs és felszíni beálló biztosítja, ahol kialakításra kerül továbbá külön megvásárolható saját tároló, közös kerékpár tároló, kerti és takarítóeszközök tárolására kialakított tárolóhelyiség. A harmadik ütem impozáns két épülete között közös behatjású garázsszint feletti tetőterasz és tetőkert teszi kellemessé a modern kialakítású környezetet. KERÁMIA LAKÓPARK A tökéletes otthon, ahol a modern életstílus és a kényelem találkozik!Zalaegerszeg belvárosában a Vizslapark szomszédságában új építésű, elegáns, parkosított lakópark kínálja optimális, tágas terekkel rendelkező otthonait 2025. I.negyedévi átadással.Ideális elhelyezkedésOlyan otthont keresel, amely modern és energiatakarékos megoldásokkal rendelkezik, alacsony rezsiköltséget biztosít és Zalaegerszeg Belvárosában helyezkedik el? Mindezt megtalálhatod, ahol a stílus és kényelem tökéletes összhangban van.A két épületből álló beruházás során összesen 30 lakás épül. Az épület alatt kialakított teremgarázsokkal sikerült a szabad területek parkosítását a lehető legnagyobb mértékben megnövelni, ezzel a lakóparkot beilleszteni a környezetébe. A teremgarázsok mellett, felszíni parkolók és tárolók is elérhetők, hogy autók és használati tárgyak is biztonságban legyenek.Az épületeket egy közös, körbekerített zöld kertrész köti össze, ami nyugodt és barátságos környezetet teremt a lakók számára.Központi, mégis nyugodt környezetA társasház elhelyezkedése ideális: a közeli oktatási és egészségügyi intézmények, valamint vásárlási, sportolási és szórakozási lehetőségek könnyen elérhetők, így a mindennapi élet kényelmesebb és gördülékenyebb lesz.Nagy előny, hogy az összes lakáshoz tartozik erkély, melyek kifejezetten tágasak. Az otthonok kényelmét nem csak a napfényes teraszok, de a modern műszaki megoldások is növelik – a lakások fűtését és használati melegvíz ellátását környezetbarát levegő-víz hőszivattyúk és kondenzációs gázkazánok összehangolt működésén alapuló energiatakarékos rendszer biztosítja. A hőleadók acéllemez lapradiátorok és fürdőszobai törölközőszárító radiátorok.Főbb műszaki paraméterek:- vasbeton pillérvázas tartószerkezet- vázkitöltő falazat vasbeton merevítő falak és teherhordó téglafalazatok, vegyes szerkezet- lakáselválasztó falazat 25 cm vastag Porotherm 25 AKU Z hanggátló kerámia falazó elem- belső válaszfalak 10 cm vastag POROTHERM N+F válaszfal elem- homlokzatképzés a téglafalak és a kiegészítő hőszigetelések hőszigetelő alap- és vékonyvakolattal- 3 rétegű, hőszigetelő üvegezésű, műanyag nyílászárók (résszellőzővel)- beépített redőnytok- környezetbarát levegős-hőszivattyúrendszerű fűtés- erősáramú elektromos hálózat minden lakásban 3x20A elektromos teljesítmény- az épület energiaosztálya A+- lépcsőházanként 1db lift készült elérve a teremgarázst és a 4 lakószíntet egyaránt stb.A változatos méretű és alaprajzú lakástípusok között megtalálhatják álmaik otthonát az első lakást kereső fiatalok, a CSOK+ támogatást kihasználó családosok, valamint a befektetési céllal vásárlók is.Ismerje meg közelebbről a lakópark által biztosított lehetőségeket! Egyeztessen időpontot! Várom megkeresését!Irodánk teljes körű szolgáltatást nyújt ügyfeleinknek, többek között hitelügyintézéssel és energetikai tanúsítvány elkészítésével. Vevőink számára minden szolgáltatásunk INGYENES!A Kerámia Lakópark korábbi ütemeinek sikeres lezárását követően 30 db változatos méretű lakással egészül ki a lakópark. A négy lépcsőházból álló társasházában, két épülettömbben 30 db lakás kerül megépítésre, alagsori teremgarázs, magasföldszint, 3 emeletes kialakításban. Az igényes, lifttel ellátott lépcsőházakban emeletenként 4 db kettő égtájolású változatos méretű lakás, a „C” jelzésű épület negyedik emeletén pedig 2 db három égtájolású nagyobb alapterületű penthouse lakás létesül. A körbekerített telken belüli parkolást az alagsori szinten kialakításra kerülő teremgarázs és felszíni beálló biztosítja, ahol kialakításra kerül továbbá külön megvásárolható saját tároló, közös kerékpár tároló, kerti és takarítóeszközök tárolására kialakított tárolóhelyiség. A harmadik ütem impozáns két épülete között közös behatjású garázsszint feletti tetőterasz és tetőkert teszi kellemessé a modern kialakítású környezetet. 89662000 Ft További információért keressen bizalommal!Tóth György +36 70 905 6752 Referencia szám: PR031242/LK/21999
https://lakasok.hu/elado/lakas/zalaegerszeg/90-millio-ft;80-negyzetmeter;4-szoba;tegla-epitesu/11604760