Az értékesítő:
Tőkés Levente
+36 30 362 4723

Eladó lakás Budapest XIII. ker, 101 500 000 Ft, 70 négyzetméter

101 500 000 Ft
lakás, 70 négyzetméter
Építőanyag:
Tégla
Egész szobák:
1
Komfort fokozat:
Összkomfort
Ingatlan állapota:
Kitűnő
Azonosító:
11600677
Értékesítés típusa:
eladó
Ingatlan típusa:
lakás
Település:
Budapest XIII. ker
Alapterület:
70
Ár:
101 500 000 Ft
Tulajdonviszony:
Saját
Emelet:
2. emelet
Fűtés jellege:
Hőszivattyú
Kilátás:
utcai
Építési év:
Új építésű
Erkély:
Van
Pince:
Nincs
Tároló:
Nincs
Lift:
Nincs
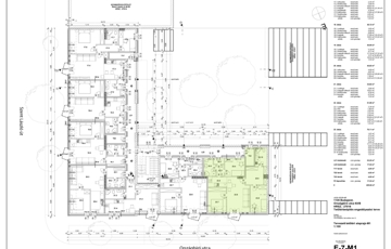
ÚJ ÉPÍTÉSŰ INGATLANOK 2027 KÖLTÖZÉSSEL! Angyalföld: Angyalföld Budapest XIII. kerületének legnagyobb városrésze, amely az egykori ipari zónából mára modern lakó- és irodanegyeddé alakult át. Hagyományos ipari zónák helyén ma már irodaházak, kereskedelmi egységek és a Duna-parton luxuslakások találhatók. Az épület tettérbeépítése során törekedtünk olyan lakások kialakítására, ami a mai lakásigényeknek felel meg, mint amerikai konyhás nappali és külön hálószoba. Változatos lakásokat alakítottunk ki úgy méretükben, mint elrendezésükben. 23 lakás. Előszoba: 2.73 nm. Előtér: 1.87 nm. Fürdőszoba: 4.73 nm. Konyha: 4.84 nm. Nappali: 18.20 nm. Közlekedő: 4.39 nm. Hálószoba: 8.71 nm. Fürdőszoba: 4.05 nm. Halószoba: 8.04 nm. Hálószoba: 8.02 nm. Fürdőszoba: 5.01 nm. Erkély: 1.52 nm. Fizetés: készültségi fokozathoz kötött fizetési ütemezés. A további kérdésekkel és a megtekintéssel kapcsolatban, kérem keressen a megadott mobil számon.
https://lakasok.hu/elado/lakas/budapest-xiii-ker/102-millio-ft;70-negyzetmeter;4-szoba;tegla-epitesu/11600677