Az értékesítő:
Németh Zoltán
+36 70 429 3053

Eladó lakás Mór, Belváros, 44 500 000 Ft, 53 négyzetméter

44 500 000 Ft
lakás, 53 négyzetméter
Építőanyag:
Panel
Egész szobák:
2
Komfort fokozat:
Összkomfort
Ingatlan állapota:
Kitűnő
Azonosító:
11599316
Értékesítés típusa:
eladó
Ingatlan típusa:
lakás
Település:
Mór
Alapterület:
53
Ár:
44 500 000 Ft
Tulajdonviszony:
Saját
Emelet:
3. emelet
Fűtés jellege:
Távfűtés
Elhelyezkedés:
Társasház
Kilátás:
panorámás
Építési év:
21-50 éves
Tároló:
Van
Lift:
Nincs
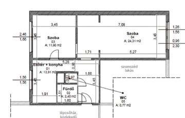
Kisvárosi hangulat, történelmi kilátással Mór rendezett, hangulatos településén, központi elhelyezkedéssel, mégis nyugodt környezetben kínálunk megvételre egy 3. emeleti, 2 szoba + hallos, napfényes lakást. A rendezett társasházban található, világos, barátságos ingatlan élhető terekkel, nyugodt lakókörnyezettel, park és kastélypanorámával várja új lakóit. A gondosan karbantartott, jó állapotú lakás azonnal költözhető, de igény szerint tovább formálható. Rendkívül alacsony közös költsége és a díjmentes parkolási lehetőség a ház előtt tovább növeli az ingatlan vonzerejét. Az ingatlan fűtését távhő biztosítja, műanyag nyílászárói és az emeleti elhelyezkedése egyaránt hozzájárulnak a kedvező fenntartási költségekhez. A lakáshoz saját használatú tároló is tartozik, amely praktikus megoldást kínál a mindennapokban. Minden karnyújtásnyira elérhető: bevásárlás, orvosi rendelő, szolgáltatások – miközben a park és a történelmi környezet különleges, kisvárosi atmoszférát teremt. Ez az otthon ideális választás lehet mindazok számára, akik nem csupán egy lakást, hanem egy szerethető környezetet és kiegyensúlyozott hétköznapokat keresnek. Bővebb információért keressen minket bizalommal, segítünk megtalálni új otthonát.
https://lakasok.hu/elado/lakas/mor/45-millio-ft;53-negyzetmeter;2-szoba;panel-epitesu/11599316