Az értékesítő:
Göbölyös Ágnes
+36 30 397 6489

Eladó lakás Budapest XXIII. ker, 108 750 000 Ft, 77 négyzetméter

108 750 000 Ft
lakás, 77 négyzetméter
Építőanyag:
Tégla
Egész szobák:
3
Komfort fokozat:
Összkomfort
Ingatlan állapota:
Kitűnő
Azonosító:
11599019
Értékesítés típusa:
eladó
Ingatlan típusa:
lakás
Település:
Budapest XXIII. ker
Alapterület:
77
Ár:
108 750 000 Ft
Tulajdonviszony:
Saját
Emelet:
Földszint
Fűtés jellege:
Hőszivattyú
Kilátás:
udvari
Építési év:
Új építésű
Erkély:
Van
Pince:
Nincs
Tároló:
Nincs
Lift:
Nincs
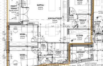
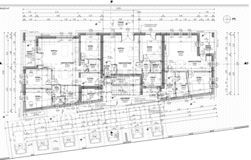
Eladó egy új építésű, összesen 6 lakásból álló társasház valamennyi lakása. Az ingatlan 3%-os Otthon Start hitellel is megvásárolható. Az ingatlan Soroksár új kertvárosi lakóparkjában, csendes, családbarát környezetben található, ahol a nyugodt életvitel és a jó városi elérhetőség harmonikusan találkozik. A város zajától távol, mégis kiváló infrastruktúrával rendelkezik: üzletek, szolgáltatások és tömegközlekedés könnyen elérhetők. A Soroksári kiserdő és a Duna közelsége különleges, természetközeli hangulatot biztosít, amely valódi otthonérzetet nyújt a leendő tulajdonosok számára. A meghirdetett lakás: 1. lakás: - Földszint, - 75 nm, - 3 szoba, - Amerikai konyhás nappali, - 1 Fürdő, - 1Wc, - Terasz 5 nm. - 108.750.000 Ft 2. lakás: - Földszint, - 65.250.000 Ft 3. lakás: - Földszint, - 69.600.000 Ft 4. lakás: - Emelet, - 100.050.000 Ft 5. lakás: - Emelet, - 77.575.000 Ft 6. lakás: - Emelet, - 69.600.000 Ft MŰSZAKI TARTALOM Szerkezet és szigetelés • ProKoncept rendszerű falazat (25–35 cm vastagság) • 15 cm vastag grafitos hőszigetelés a homlokzaton • Lábazati és koszorú előtti hőszigetelés • Talajnedvesség elleni bitumenes szigetelés • Kiemelkedő hő- és hangszigetelési tulajdonságok Tető • Égetett agyag cserépfedés • Alacsony hajlásszögű tetőrészeken korcolt fémlemez fedés • Tartós, időjárásálló szerkezeti kialakítás Nyílászárók • Műanyag nyílászárók, 3 rétegű hőszigetelő üvegezéssel • Jó hő- és hangszigetelési értékek • Teraszajtók szintén 3 rétegű üvegezéssel Fűtés – gépészet • Levegő–víz hőszivattyús fűtési rendszer • Felületfűtés (padlófűtés) • Elektromos bojleres melegvíz-ellátás Energia & jövőállóság • Energiatakarékos, korszerű műszaki megoldások • Napelem későbbi kiépítésének lehetősége • Elektromos autó töltés előkészítése Burkolatok, belső kialakítás • Gipszkarton álmennyezet • Burkolatok magas minőségben, választható kivitelben Parkolás, környezet • Telken belüli parkolás • Minden lakáshoz saját autóbeálló • Földszinti lakásokhoz saját kis kert • Aszfaltozott utca, kiépített közművek Az elkészült lakások lakhatási engedéllyel kerülnek átadásra!!! Tervezett átadás: 2026. év vége! Ütemezés: 20% foglaló, a fennmaradó összeg megbeszélés alapján. Irodánk 30 éves szakmai tapasztalattal áll ügyfelei rendelkezésére! Bankfüggetlen hitelcentrummal, jogi hátérrel segítjük ingatlanvásárlását! Várom szíves megkeresését, hívjon bizalommal!
https://lakasok.hu/elado/lakas/budapest-xxiii-ker/109-millio-ft;77-negyzetmeter;3-szoba;tegla-epitesu/11599019