Az értékesítő:
Vajda Eszter
+36 70 374 8484

Eladó lakás Siófok, 57 900 000 Ft, 57 négyzetméter

57 900 000 Ft
lakás, 57 négyzetméter
Egész szobák:
3
Komfort fokozat:
Összkomfort
Ingatlan állapota:
Átlagos
Azonosító:
11597949
Értékesítés típusa:
eladó
Ingatlan típusa:
lakás
Település:
Siófok
Alapterület:
57
Ár:
57 900 000 Ft
Emelet:
3. emelet
Fűtés jellege:
Cirkó
Kilátás:
utcai
Építési év:
21-50 éves
Erkély:
Van
Kocsibeálló:
Van
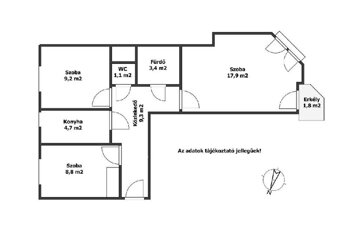
Balaton déli parton, Siófokon, a Belvárosban, 57 m2-es lakás eladó. Siófok központjához közel, mégis csendes, rendezett környezetben eladó egy nappali + 2 szobás, erkélyes, 57 m2-es lakás, amely egy társasház 3. emeletén helyezkedik el. A fűtést gáz cirkó kazán biztosítja, a lakás kedvező tájolásának és elosztásának köszönhetően pedig világos terekkel rendelkezik. A nappaliban hűtő-fűtő klímaberendezés növeli a kényelmet. A lakáshoz tartozik egy saját használatú tároló, a földszinten pedig babakocsi-tároló áll rendelkezésre. Az épület zárt udvarán lakásonként egy gépkocsi részére biztosított parkolóhely. Az ingatlan elhelyezkedése kiváló: a közelben óvoda, iskola, játszótér, valamint számos szolgáltatás és vásárlási lehetőség található. A vasút- és autóbusz-állomás 500 méterre, a Balaton-part és a Nagystrand mindössze 1000 méterre, kb. 15 perc sétára érhető el. Ideális választás állandó otthonnak, nyaralónak vagy befektetésnek / kiadásra. Bővebb információért vagy megtekintés egyeztetéséhez keressen telefonon! Referencia szám: M322026
https://lakasok.hu/elado/lakas/siofok/58-millio-ft;57-negyzetmeter;3-szoba;nincs-megadva-epitesu/11597949