Az értékesítő:
Harangi László
+36 30 514 6564

Eladó lakás Budapest XIII. ker, 189 900 000 Ft, 116 négyzetméter

189 900 000 Ft
lakás, 116 négyzetméter
Építőanyag:
Tégla
Egész szobák:
4
Komfort fokozat:
Összkomfort
Ingatlan állapota:
Kitűnő
Azonosító:
11579518
Értékesítés típusa:
eladó
Ingatlan típusa:
lakás
Település:
Budapest XIII. ker
Alapterület:
116
Ár:
189 900 000 Ft
Emelet:
5. emelet
Fűtés jellege:
Cirkó
Kilátás:
kertre néző
Építési év:
1-5 éves
Erkély:
Van
Lift:
Van
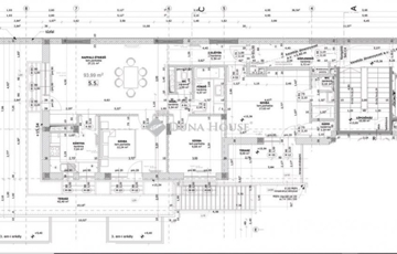
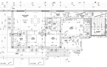
Penthouse jellegű lakás 44nm-es terasszal!! Angyalföldön! Eladó egy 5. emeleten található, nappali + 3 hálószoba + 2 fürdővel rendelkező, klimatizált lakás 44nm terasszal! Az ingatlanhoz tartozik:- 2 zárt autóbeálló: 8MFt + 8MFt értékben, valamint plusz egy liftes beálló ingyenesen- 2 tároló: 4,6MFt + 5Mft értékben (5,36nm + 5,74nm), valamint egy plusz tároló 4,3nm ingyenesen- Minden lakáshoz elegáns, porfestett acél francia erkélyes terasz- Biztonsági kaputelefon és térfigyelő kamerarendszer a lakópark területén és parkoló-, tárolószinteken- Gyorsliftek minden emeletre, még a parkoló és tárolók szintjére is- Exkluzív környezet mindössze 71 lakással- Szupermarket és orvosi rendelő a társasház közvetlen közelében- Kiváló hang- és hőszigetelő beton vázszerkezetA városi előnyök mellett a természet élményét a közelben csörgedező Rákos-patak is fokozza, mely ideális helyszíne a természet- közeli kikapcsolódásnak egy kellemes séta, vagy éppen a napi kocogás helyszíneként. Ezenfelül a partján hatalmas alapterületű, gondozott kutyafuttatók is találhatóak.Elhelyezkedésének egyik fő előnye a kerületben található intézmények sokasága. A közelben számtalan bölcsőde, óvoda, iskola és egészségügyi intézmény található. A sportoláshoz ideális helyszín az Angyalföldi sportközpont, a Dagály Fürdő és a Palatinus Strand. A szórakozást keresőknek a közelben számos színház (József Attila Színház, Vígszínház), galéria és mozi kínál kikapcsolódást. A bevásárlásra pedig a környék szupermarketjei (Lidl, Aldi, Penny Market), a kisboltok, a Váci úti Tesco, a Duna Plaza, a Lehel téri piac és az Újpesti Városközponti üzletei nyújtanak megoldást. A kertvárosi hangulat mellett a környék tömegközlekedése is kiváló. A 14-es villamos Fiastyúk utcai megállója rövid sétányira, míg a 30, 32, 20E, 30A és 230 jelű buszok megállója is pár percnyire található. A lakópark ezen felül autóval is könnyedén megközelíthető. Referencia szám: LK018061
https://lakasok.hu/elado/lakas/budapest-xiii-ker/190-millio-ft;116-negyzetmeter;4-szoba;tegla-epitesu/11579518