Az értékesítő:
Mihócza Zsolt
+36 30 686 1118

Eladó lakás Kecskemét, 75 000 000 Ft, 47 négyzetméter

75 000 000 Ft
lakás, 47 négyzetméter
Építőanyag:
Tégla
Egész szobák:
1
Ingatlan állapota:
Épülő
Azonosító:
11575717
Értékesítés típusa:
eladó
Ingatlan típusa:
lakás
Település:
Kecskemét
Alapterület:
47
Ár:
75 000 000 Ft
Emelet:
3. emelet
Fűtés jellege:
Egyéb
Építési év:
Új építésű
Erkély:
Van
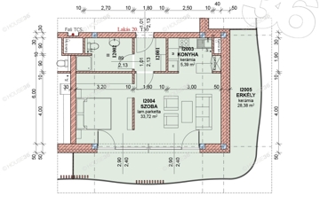
Eladó, tóra néző, szép, tágas lakás, nagy erkéllyel! Az új prémium lakópark, hazánkban egyedülálló lehetőséget biztosít nyugdíjas korúaknak, Kecskemét közelében. Biztonságos nyugodt környezetben, tóra néző rendkívüli panorámával rendelkező lakás, széles, hosszú üveglapos megoldású erkéllyel a zavartalan kilátásért. Minden az időskorú lakók kényelmére terveztek! A lakópark alsó szintjén található egy nagy közösségi tér, asztalokkal székekkel, illetve cukrászda, pizzéria, kávézó, ami szintén az időskorúak kényelmét szolgálja. A lakás lakója, bérlője, csak nyugdíjas lehet, tulajdonosa bárki. A lakásban padlófűtés mennyezeti fűtés található. A konyha az új tulajdonos igény szerinti befejezésére vár, üres állapotban eladó. Alapterülete 47 m2, az erkély 28 m2, igény szerint két szobássá átalakítható, térelválasztó elemmel. Figyelem, az adatlap megbízóinktól kapott adatok alapján készült, pontosságáért felelősséget nem tudunk vállalni. A tulajdonos kérésére az ingatlan bemutatása egy személyes konzultáció után történik, ahol részletes tájékoztatást kaphat az ingatlan paramétereiről és egyéb kényelmi szolgáltatásairól. A HOUSE36 kínálatában található összes ingatlannal kapcsolatban tudok felvilágosítást nyújtani! Hívjon bizalommal! Szolgáltatásaink Kereső ügyfeleink számára INGYENESEK! Az iroda legfrissebb, aktuális kínálatát a HOUSE36 saját weboldalán találja!
https://lakasok.hu/elado/lakas/kecskemet/75-millio-ft;47-negyzetmeter;1-szoba;tegla-epitesu/11575717