Az értékesítő:
Dr. Nagy Erika
+36 70 461 9076

Eladó lakás Debrecen, Belváros, 136 000 000 Ft, 62 négyzetméter

136 000 000 Ft
lakás, 62 négyzetméter
Építőanyag:
Tégla
Egész szobák:
3
Ingatlan állapota:
Kitűnő
Azonosító:
11470170
Értékesítés típusa:
eladó
Ingatlan típusa:
lakás
Település:
Debrecen
Alapterület:
62
Ár:
136 000 000 Ft
Fűtés jellege:
Központi (egyedi mérővel)
Kilátás:
utcai
Erkély:
Van
Kertkapcsolat:
Nincs
Kocsibeálló:
Nincs
Tároló:
Nincs
Lift:
Van
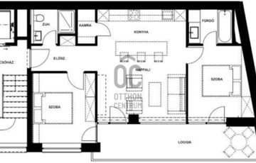
Debrecen belvárosában, a Nagytemplom közvetlen közelében 90%-os készültségben kész, újépítésű lakások vásárolhatók. A társasház egy neves tervező házaspár (Balázs Csaba és Vecsey Andrea) tervei szerint készült. Modern lakások, melyek magas minőséggel és komfortos, tágas lakóterekkel rendelkeznek. A társasházban 11 lakás került kialakításra két épületszárnyban. kilenc lakás az új baloldali épületszárnyban, kettő pedig régi épületszárnyba került. A 11 lakásból 2 db lakás belső kétszintes kialakítású. A lakásokhoz garázs vásárolható. A gépkocsi tárolási lehetőség az udvarból nyíló három szintes Klaus Multiparking rendszerű 11 beállós gépesített garázsban van. Ez egy olyan ingatlan, amelyre nem kell éveket várni, hogy elkészül, tekintettel a készültségi fokra. A kivitelező magas műszaki tartalommal valósította meg a projektet, nem spórolt a minőségi anyagokkal. A társasház kialakítása: -osztott, hő- és hangszigetelt, 3 rétegű, fém nyílászárók, - vasbeton pillérvázas szerkezetű, - fűtése padlófűtéssel, hűtés split klímával, -egyedi mérők felszerelve minden lakásban, nagyon alacsony rezsi Amennyiben hirdetésünk felkeltette érdeklődését, várjuk hívását a hét minden napján! Projekt leírás Igazán ritka lehetőség Debrecen legszigorúbban vett belvárosában! A Nagytemplom közvetlen közelében épülő, 90%-os készülltségben lévő, 11 lakásos társasházban új lakások eladók. Szeretne Debrecen város történelmi belvárosa kellős közepén csendes, modern, exkluzív lakásban élni, ahol szinte minden elérhető gyalogszerrel vagy villamossal. Ajánljuk figyelmébe az alábbiakban bemutatásra kerülő, megítélésünk szerint egyedülállóan kiváló és különleges lakásokat. Az ingatlanok, a kiemelt környezetnek megfelelő, extra műszaki tartalommal kerülnek megépítésre. Erre garancia a nemzetközi építész csapat és a felhasznált anyagok minősége. A részletes tervekről, műszaki leírásról és minden más információról szívesen adunk tájékoztatást, hívják kollégánkat a hét minden napján bizalommal! A lakásokhoz vásárolható saját garázsok, amelyek az udvarból nyíló háromszintes „Klaus Trendvario 6300” típusú 4 db 2 tonna és 7 db 2,6 tonna teherbírású tálcával készül és távirányítóval szerelt gépkocsi liftekkel közelíthetők meg. A 11 lakásból még elérhető ingatlanok aktuális számát a projektlapon belüli lakások oldalán találják, vagy kollégánktól érdeklődhetnek! Projekt bemutatása Igazán ritka lehetőség Debrecen legszigorúbban vett belvárosában! A Nagytemplom közvetlen közelében épülő, 90%-os készülltségben lévő, 11 lakásos társasházban új lakások eladók. Szeretne Debrecen város történelmi belvárosa kellős közepén csendes, modern, exkluzív lakásban élni, ahol szinte minden elérhető gyalogszerrel vagy villamossal. Ajánljuk figyelmébe az alábbiakban bemutatásra kerülő, megítélésünk szerint egyedülállóan kiváló és különleges lakásokat. Az ingatlanok, a kiemelt környezetnek megfelelő, extra műszaki tartalommal kerülnek megépítésre. Erre garancia a nemzetközi építész csapat és a felhasznált anyagok minősége. A részletes tervekről, műszaki leírásról és minden más információról szívesen adunk tájékoztatást, hívják kollégánkat a hét minden napján bizalommal! A lakásokhoz vásárolható saját garázsok, amelyek az udvarból nyíló háromszintes „Klaus Trendvario 6300” típusú 4 db 2 tonna és 7 db 2,6 tonna teherbírású tálcával készül és távirányítóval szerelt gépkocsi liftekkel közelíthetők meg. A 11 lakásból még elérhető ingatlanok aktuális számát a projektlapon belüli lakások oldalán találják, vagy kollégánktól érdeklődhetnek!
https://lakasok.hu/elado/lakas/debrecen/136-millio-ft;62-negyzetmeter;3-szoba;tegla-epitesu/11470170