Eladó lakás Zamárdi 88 800 000 Ft

Leírás

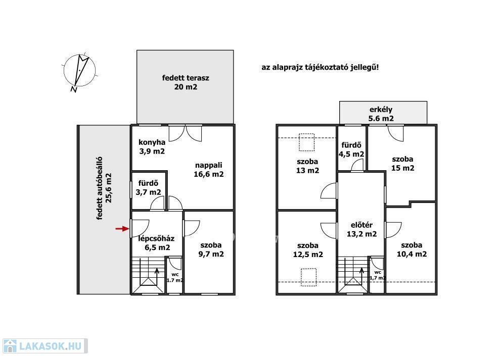
A Balaton déli partján, Zamárdiban 136 m2-es 4 hálószobás ház eladó. A város zöldövezeti részén, 444 m2-en telken fekvő kétszintes ház földszinti helyiségei: amerikai konyhás nappali, fedett terasz, háló, fürdő, wc. Az emeleten 3 háló, fürdőszoba, wc és egy jelenleg tároló/gardrób szobaként funkcionáló helyiség, amiből igény esetén még egy szoba kialakítható. A 25 m2-es fedett autóbeálló beépítésére is van lehetőség. Az emeleten egy szoba erkélyre nyílik, a földszinten az amerikai konyhás nappali pedig terasz kapcsolatos. A szomszédos egységeket dupla 38 cm-es Porotherm tégla választja el, a két egység között légréssel, így az ingatlan teljesen szeparált. A ház 2005-ben épült, azóta többszöri felújításon esett át, kívül-belül jó állapotú. Automata kapunyitás és riasztó vezetékes előkészítése megtörtént. Fűtéséről cirkó gázkazán gondoskodik, radiátoros hőleadással, az emeleten hűtő-fűtő klíma biztosítja a kellemes hőmérsékletet. A lakótér alapterülete 109 m2, a terasz, erkély, autóbeálló 50%-kal került beszámításra.
Családi házas, nyugodt környék. A közelben iskola, orvosi rendelő, élelmiszerbolt. A Balaton- parttól 1,5 km távolságra található az ingatlan.
Lakóingatlan vásárláshoz az OTP bank pénzügyi termékeivel hitel, CSOK ügyintézésben vevőinknek segítséget adunk!
Otthon Start Hitelprogram.
Megtekintésért, további információért kérem hívjon!

Referencia szám: M314006

Lakás részletei

Ár: 88 800 000 Ft
Méret: 136 négyzetméter
Azonosító: 11584343
Irodai azonosító: HK-5100574-5100574
Emelet: Földszint
Építőanyag: Tégla
Fűtés jellege: Cirkó
Ingatlan állapota:
Komfort fokozat: Összkomfort
Építési év: 21-50 éves
Kilátás: kertre néző
Egész szobák: 4
Fél szobák: 2

Egyéb jellemzők

  • Erkély
  • Klíma
  • Kertkapcsolat
  • Kocsibeálló

Térkép


Így keressen lakást négy egyszerű lépésben. Csupán 2 perc, kötelezettségek nélkül!

Szűkítse a lakások
listáját
Válassza ki a megfelelő
lakást
Írjon a hirdetőnek
Várjon a visszahívásra