Eladó lakás Zalaszentgrót 29 900 000 Ft

Leírás

Zalaszentgrót KÖZPONTI részén, 3 SZOBÁS, AZONNAL KÖLTÖZHETŐ, 2. EMELETI, NAGY erkélyes, tágas lakás ELADÓ!

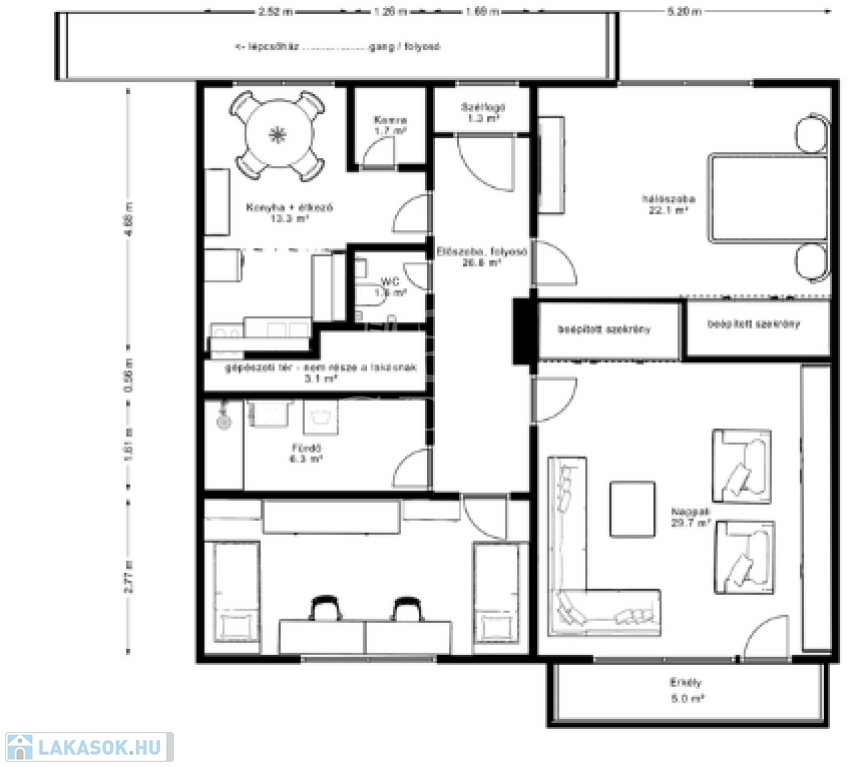
Eladásra kínálok Zalaszentgrót központjában egy 106 m2-es, tégla építésű, alacsony fenntartású lakást!

Az ingatlant egy körfolyosón keresztül tudjuk megközelíteni. A lakásba belépve találunk 3 tágas méretű szobát, egy konyha-étkező együttest hozzátartozó kamrával, egy fürdőkáddal felszerelt fürdőszobát, külön helyiségben található mellékhelyiséget, valamint egy tágas közlekedőt.
A nappaliként funkcionált szobából jutunk ki egy tágas erkélyre.
Tárolásra nagyon praktikus lehetőséget nyújt a két szobában is elhelyezkedő beépített szekrény.

Az ingatlanhoz tartozik a földszinten található saját, zárható tároló is.

A lakás eredeti állapotú, fa nyílászárókkal rendelkezik redőnnyel ellátva, valamint nagyszerű elrendezésének köszönhetően bármikor alakítható.

Az ingatlan melegéről gázcirkó fűtés gondoskodik radiátor hőleadókkal, a melegvizet villanybojler biztosítja.

A lakás egy 24 lakásos, 3 emeletes társasház 2. emeletén helyezkedik el.
A ház az 1980-as évek elején épült. Jó állapotú, a tavalyi évben, 2023-ban új szigetelést kapott.
Tartozik hozzá egy belső, zárt udvar, ahol egy kisebb játszótér is található, amely remek lehetőség a családosok számára egyaránt.

Lokációját tekintve kiváló. Központi elhelyezkedésének köszönhetően minden szükséges szolgáltatás a közelben megtalálható: iskola, óvoda, orvosi rendelő, buszmegálló, posta, élelmiszerboltok, éttermek.

Zalaszentgrót Zala vármegye északkeleti részén, a Zala folyó völgyében elhelyezkedő város a Zalai-dombságban. Az M7 autópálya, illetve a Balaton 35 km-es távolságban, az osztrák határ egy órányi autóútra található.
A kehidakustányi Gyógy- és Élményfürdő csupán csak 10 km-re van tőle, valamint a Zalacsányban megtalálható Zala Springs golfpálya is.

Az ingatlan tulajdoni lapja per- és tehermentes, tulajdonviszonyai rendezettek!

Megtekintési időpontért keressen bizalommal!

Lakás részletei

Ár: 29 900 000 Ft
Méret: 106 négyzetméter
Azonosító: 11376875
Irodai azonosító: 367179
Cím: Zalaszentgrót
Emelet: 2. emelet
Építőanyag: Tégla
Fűtés jellege: Cirkó
Ingatlan állapota:
Komfort fokozat: Összkomfort
Építési év: 21-50 éves
Tulajdonviszony: Saját
Kilátás: utcai
Egész szobák: 3

Egyéb jellemzők

  • Erkély
  • Garázs
  • Lift
  • Pince
  • Tároló

Térkép


Így keressen lakást négy egyszerű lépésben. Csupán 2 perc, kötelezettségek nélkül!

Szűkítse a lakások
listáját
Válassza ki a megfelelő
lakást
Írjon a hirdetőnek
Várjon a visszahívásra