Eladó lakás Zalaegerszeg 33 900 000 Ft

Leírás


Emeleti elhelyezkedés: Emeleten Emelet száma: 3 Épület emeleteinek száma: 4 Állapota: Használt - felújított Komfort besorolása: Komfortos Építési éve: 1956 Alapterülete: 39 m2 Szobák száma: 2szoba Felújított: Felújított Vízellátás: Vezetékes víz Fűtés módja: Gáz Fűtés típusa: Konvektoros Homlokzat állapot: átlagos Építési mód: Tégla Napelem: Van Energetikai besorolás: Nincs adat

Extrák: Különnyíló szobák, Lift, Energetikai tanúsítvány
❗BELVÁROSI FELÚJÍTOTT LAKÁS ELADÓ – 33,9 M❗
????Zalaegerszegen eladó egy 39 m²-es felújított tégla lakás a belvárosban, 33,9 millió Ft-os irányáron.

A lakás praktikus elrendezésű és világos, így ideális befektetésnek (albérlet kiadására), fiatal pároknak első otthonnak, vagy akár aktív idősebbeknek is – a harmadik emelet miatt :)

????Az ingatlan egy 1956-ban épült tégla társasház 3. emeletén található, és 2016-ban jelentős felújításon esett át. A felújítás során a teljes vízrendszer cseréje is megtörtént, falazással és burkolással együtt, így a belső rendszerek nagy része már korszerűsítve lett.

A lakás gázkonvektoros fűtéssel működik, amely a körülötte lévő lakások és a felette található szigetelt padlás miatt kifejezetten kedvező rezsivel üzemel. Az épület külső 10 cm-es szigetelést kapott, az ablakok pedig dupla fa keretesek, amelyek jó hőszigetelést biztosítanak, ezért cseréjük eddig nem volt szükséges.

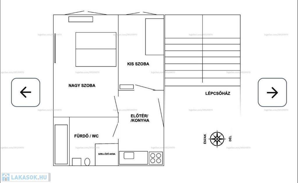
Az elosztása pedig így néz ki:

* Nappali / nagyszoba: 21 m²
* Kisszoba: 7 m²
* Konyha
* Fürdőszoba + WC (káddal)

A vízóra és a gázóra a lakáson belül található, a villanyóra pedig a lépcsőházban kapott helyet. A melegvizet jelenleg egy régebbi típusú gázbojler biztosítja, amely szükség esetén könnyen cserélhető.

????A fenntartási költség kifejezetten kedvező: a rezsi 20–25 ezer Ft körül alakul.

Parkolás ????

* Az ablakok felőli oldalon utcától zárt parkoló
* A környező utcákban is könnyen megoldható

???? Belvárosi elhelyezkedés, minden fontos szolgáltatás, üzlet és közlekedés perceken belül elérhető.

Keressen bizalommal a hét minden napján!
+3620/441-5668
[email protected]

Lakás részletei

Ár: 33 900 000 Ft
Méret: 39 négyzetméter
Azonosító: 11612571
Emelet: 3. emelet
Építőanyag: Tégla
Fűtés jellege: Konvektoros
Ingatlan állapota: Felújított
Komfort fokozat: Komfort
Építési év: 1-5 éves
Egész szobák: 2

Térkép


Így keressen lakást négy egyszerű lépésben. Csupán 2 perc, kötelezettségek nélkül!

Szűkítse a lakások
listáját
Válassza ki a megfelelő
lakást
Írjon a hirdetőnek
Várjon a visszahívásra