Eladó lakás Veszprém 75 000 000 Ft

Leírás

Otthon Veszprém egyik kedvelt környékén, a Bakonyalja városrészen

Ha olyan lakást keresel, ami családalapításhoz ideális, elég tágas a kényelmes mindennapokhoz, ugyanakkor befektetésként is stabil választás, akkor ezt az ingatlant mindenképp érdemes megnézned.

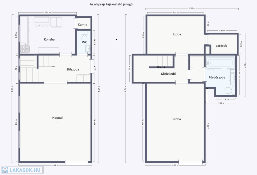
Egy rendezett társasház 3. emeletén található ez a 71 m²-es, téglaépítésű, belső kétszintes lakás, amely 2003–2004-ben épült, és azóta is folyamatosan karbantartott, jó állapotú.
A lakás nyugati tájolású, így világos, kellemes élettereket biztosít a nap nagy részében.
Az otthon 1 nappalival és 2 kisebb szobával rendelkezik, elosztása kifejezetten praktikus.
Az alsó szinten előszoba fogad, innen nyílik a konyha kamrával, egy külön WC, valamint a tágas nappali, amely nagy ablakokkal és franciaerkéllyel kapcsolódik a külső térhez.
A felső szinten egy előtérből érhető el egy nagyobb szoba franciaerkéllyel, egy kisebb szoba gardróbbal, valamint egy nagy méretű, kádas fürdőszoba, amely kényelmes megoldást nyújt akár egy család számára is.

A lakás műanyag nyílászárókkal felszerelt, redőnyökkel ellátva.
A fűtésről saját gázkazán gondoskodik radiátoros hőleadással.
Klíma nincs, azonban a jó tájolás és a kialakítás miatt a lakás jól szellőztethető.
A biztonságról beépített riasztórendszer gondoskodik, a tárolást pedig egy közös alagsori tároló segíti. Parkolás a ház előtt ingyenesen megoldott.
2010-ben amikor mostani tulajdonosai beköltöztek, sor került a burkolatok cseréjére, valamint méretre gyártott bútorok beépítésre.

A LAKÁS AZONNAL KÖLTÖZHETŐ.

Fenntartása kifejezetten kedvező: a gázköltség az elmúlt két év átlaga alapján havi 7.000–8.200 Ft, a közös költség 11.000 Ft, így a lakás gazdaságosan üzemeltethető, ami befektetők számára is különösen vonzó.

A környék Veszprém egyik kedvelt része, ahol iskola, óvoda, üzletek könnyen elérhetők. A belváros és a buszpályaudvar néhány perces autóútra található, a vasútállomás pedig mindössze 10 perc sétával megközelíthető. A környéken sok a zöldterület, parkok és játszóterek teszik igazán családbaráttá a környezetet.

Az ingatlan megvásárlásához Otthon Start és CSOK Plusz hitel is igénybe vehető.

Ez a lakás tökéletes választás, ha hosszú távra tervezel, nagyobb élettérre vágysz, vagy egy biztos, jól kiadható befektetést keresel.

Ne gondolkodj sokáig – nézd meg személyesen a hét bármelyik napján, és találd meg benne az új otthonod!

Szeretettel várom hívásod!

Dr. Serhalné Zsiray Tünde
06 20 258 5752
Dream-Ing
Álomból Otthont!

Lakás részletei

Ár: 75 000 000 Ft
Méret: 71 négyzetméter
Azonosító: 11599723
Irodai azonosító: 349361
Emelet: 3. emelet
Építőanyag: Tégla
Fűtés jellege: Cirkó
Ingatlan állapota:
Komfort fokozat: Összkomfort
Egész szobák: 1
Fél szobák: 2

Egyéb jellemzők

  • Erkély
  • Lift
  • Kertkapcsolat

Így keressen lakást négy egyszerű lépésben. Csupán 2 perc, kötelezettségek nélkül!

Szűkítse a lakások
listáját
Válassza ki a megfelelő
lakást
Írjon a hirdetőnek
Várjon a visszahívásra