Eladó lakás Veszprém 70 000 000 Ft

Leírás

Eladó új építésű lakások Veszprémben!

FIGYELEM:
- 35 lakásos társasházban már csak 5 lakás elérhető!
- Várható kulcsrakész átadás: 2026. II. negyedév.
- A lakásokhoz külön vásárolható földszinti tároló.
- Az ingatlanhoz tartozó parkolóhely az udvarban található, vételára 1.000.000 Ft, melyet az ingatlannal együtt meg kell vásárolni.
- Az esetleges elírások, információk és a változtatások jogát fenntartjuk!

ALAPADATOK:
A társasház LIFTES, a lift félemeleteken áll meg.

- VÁRHATÓ ÁTADÁS: 2026. II. negyedév
- SZERKEZETE: TÉGLA
- SZIGETELÉS: van, 15 cm
- LAKÁSOK SZÁMA: 35
- EMELETEK SZÁMA: 4
- SZINTEK SZÁMA: 5

A LAKÁS:
- A legfelső emeleten található -PENTHOUSE
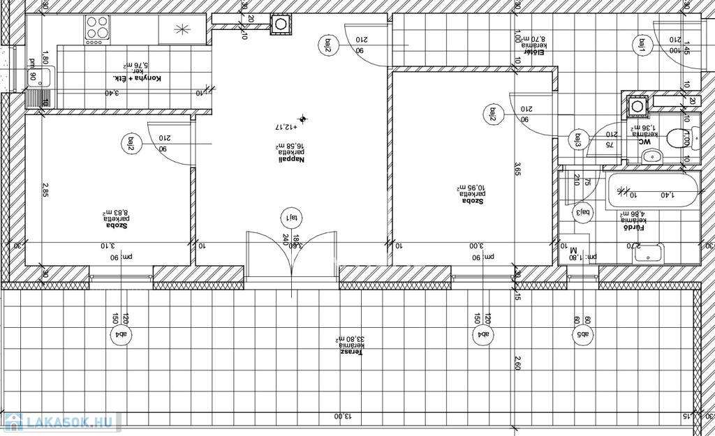
- HASZNOS ALAPTERÜLETE: 57,04 m2
- Szobák száma: 3
- Amerikai konyhás nappali teraszkapcsolattal
- Külön fürdőszoba és WC
- A LAKÁS TÁJOLÁSA: DNY-NY
- Erkély: 33,8 m2

Műszaki tartalom:
Fűtés: hőszivattyú, padlófűtés
Melegvíz: hőszivattyú

Fürdőszoba: kád
WC: falba épített tartályos kivitel kézmosóval

Falazat: 30 cm vastag vázkerámia falazóblokk
Hőszigetelés: EPS és kőzetgyapot

Burkolatok:
Konyha, előtér, folyosó: kerámia burkolat
Fürdőszoba, WC: csempeburkolat 210 cm magasságig
Szobák, nappali: laminált parketta

Nyílászárók:
Hőhídmentes műanyag ablakok, 3 rétegű üvegezéssel
Több ponton záródó biztonsági bejárati ajtó
Beépített redőnytok, elektromos előkészítéssel

Kaputelefon és kapunyitó a lépcsőházaknál

Amennyiben az ingatlan megvásárlásához el kell adnia jelenlegi otthonát, úgy annak és a teljes folyamatnak a lebonyolításában is állok rendelkezésre!

További információkért forduljon hozzám bizalommal, hívjon a megadott telefonszámon - akár hétvégén is!


TOVÁBBI SZOLGÁLTATÁSAINK:
- Megbízható ügyvédi háttér
- INGYENES, FÜGGETLEN hitelügyintézés
- INGYENES, FÜGGETLEN biztosítási tanácsadás
- Energetikai tanúsítvány és ingatlan értékbecslés készítése
- Klíma rendszerek kiépítése és beüzemelése
- Riasztó- és kamera rendszerek kiépítése
- Közművek és szolgáltatók átírása
- Birtokbaadás lebonyolítása
- Kert- és tereprendezés
- Ingatlan takarítás
- Ingatlan felújítás
- Költöztetés

10 ÉVES SZAKMAI TAPASZTALATTAL!


#gonahome #tegyelprobara #keressbizalommal #mindenamiingatlan




Lakás részletei

Ár: 70 000 000 Ft
Méret: 57 négyzetméter
Azonosító: 11591293
Irodai azonosító: 341238
Emelet: 4. emelet
Építőanyag: Tégla
Ingatlan állapota: Kitűnő
Komfort fokozat: Összkomfort
Építési év: Új építésű
Egész szobák: 3

Egyéb jellemzők

  • Erkély
  • Lift
  • Kertkapcsolat

Így keressen lakást négy egyszerű lépésben. Csupán 2 perc, kötelezettségek nélkül!

Szűkítse a lakások
listáját
Válassza ki a megfelelő
lakást
Írjon a hirdetőnek
Várjon a visszahívásra