Eladó lakás Veszprém 63 000 000 Ft

Leírás

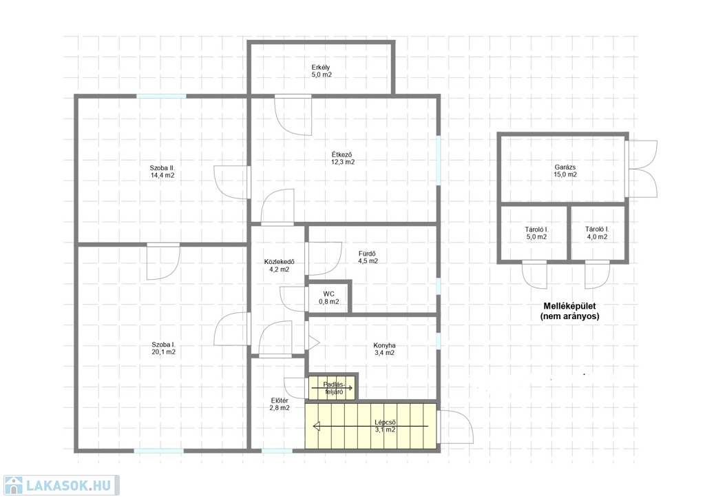
Veszprém belvárosában, első emeleti erkélyes, felújítandó négyes társasházi lakás kis kertrésszel, garázzsal eladó, melynek főbb paraméterei:

- 1959-ben épült téglából,
- 68nm-es, három szobás
- fűtése gáz-konvektoros, fürdőben elektromos, törölközőszárítós radiátor lett kialakítva,
- az elmúlt évek felújítása során, a tető cserép héjazatot kaptt,
- a nyílászárókat háromrétegű hő-és hangszigeteltre cserélték és redőnnyel látták el,
- fürdőszoba és Wc mind esztétikailag, mind műszakilag megújult (vízvezetékek cseréje is megtörtént)
- a konyhába új bútor és gáztűzhely került
- a melegvizet új átfolyós gázbojler biztosítja
- a nappali Ny-i, a másik két szoba K-i tájolású.
- kertrész kb. 200nm, mely lehetőséget ad pihenésre, kertészkedésre, gyerekeknek játszásra
- a garázshoz tarttozik két tároló, melyek alkalmasak kertieszközök, kerékpárok tárolására
- a telken két autóval is megoldható a parkolás

Elhelyezkedésének köszönhetően kiváló lehetőség irodának vagy rendelőnek is!
Könnyen megközelíthető tömegközlekedéssel, autóval ill. a parkolás is megoldott a ház közvet közelében.

Iá: 63.000.000 Ft

Amennyiben felkeltette érdeklődését az ingatlan, forduljon hozzám bizalommal további kérdéseivel!
Érd.: 20 4068593


Lakás részletei

Ár: 63 000 000 Ft
Méret: 68 négyzetméter
Azonosító: 11561478
Irodai azonosító: 341234
Emelet: 1. emelet
Építőanyag: Tégla
Fűtés jellege: Konvektoros
Ingatlan állapota: Felújítandó
Komfort fokozat: Összkomfort
Egész szobák: 3

Egyéb jellemzők

  • Erkély
  • Garázs
  • Lift

Így keressen lakást négy egyszerű lépésben. Csupán 2 perc, kötelezettségek nélkül!

Szűkítse a lakások
listáját
Válassza ki a megfelelő
lakást
Írjon a hirdetőnek
Várjon a visszahívásra