Eladó lakás Veresegyház 65 800 000 Ft

Leírás

Eladó új építésű (tégla) lakás ( TÖBB DARAB ) Veresegyház központi részén!

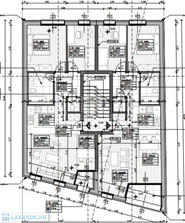
Az ingatlanban 4 lakás és 3 üzlethelyiség kapott helyet a hozzá tartozó parkolókkal. Minden egység még IDÉN KÖLTÖZHETŐ, 3 %-os HITELRE MEGVÁSÁROLHATÓ!

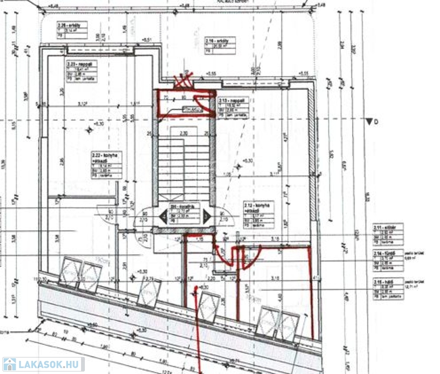
A fent meghirdetett lakás 58 m²-es, a 2. emeleten helyezkedik el, amerikai konyhás nappali + 1 háló. Tartozik hozzá egy 20.5 m²-es terasz,( a panoráma képek a teraszon állva készültek) valamint a közös kert és egy gépkocsi beálló, közös tároló.
Az építtető régóta a piacon lévő cég, megbízható, korrekt, magas minőségben épít.
Padlófűtés, mennyezet hűtés, hőszivattyú, stb.

Az ingatlan kiváló választás lehet azok számára, akik a város központjában keresnek új otthont.
ELÉRHETŐ MÉG:
1. emelet, nappali + 2 háló, fedett terasz, 72,5 nm, 86.8 millió.
1. emelet, nappali + 2 háló, fedett terasz,70 nm, 83.4 millió.

Bővebb felvilágosításért kérem hívjon, köszönöm!
Bank semleges hitelcentrumunk számos bank 3%-os ajánlatát nyújtja Önnek díjmentesen.

Lakás részletei

Ár: 65 800 000 Ft
Méret: 58 négyzetméter
Azonosító: 11570822
Irodai azonosító: 388155
Cím: Központi részén
Emelet: 2. emelet
Építőanyag: Tégla
Fűtés jellege: Házközponti (egyedi mérővel)
Ingatlan állapota: Kitűnő
Komfort fokozat: Összkomfort
Építési év: Új építésű
Tulajdonviszony: Saját
Kilátás: kertre néző
Egész szobák: 2

Egyéb jellemzők

  • Erkély
  • Garázs
  • Lift
  • Pince
  • Tároló

Térkép


Így keressen lakást négy egyszerű lépésben. Csupán 2 perc, kötelezettségek nélkül!

Szűkítse a lakások
listáját
Válassza ki a megfelelő
lakást
Írjon a hirdetőnek
Várjon a visszahívásra