Eladó lakás Veresegyház 99 900 000 Ft

Leírás

ÚJ ÉPÍTÉSŰ IKERHÁZ VERESGYHÁZON!
Költözzön be tavasszal csodás új otthonába!

Családbarát környezet, saját kert, modern technológia – minden adott egy igazi OTTHONHOZ!

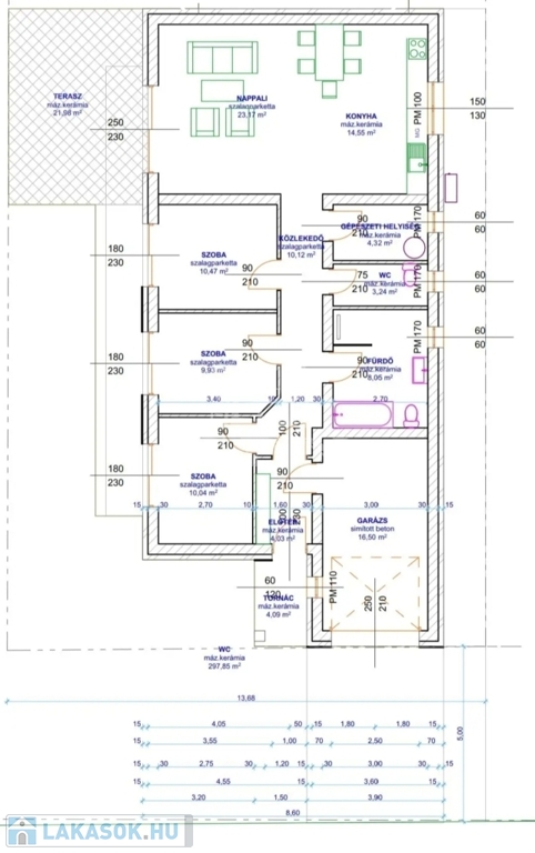
Földszintes ikerház nettó 98 nm hasznos lakótér 38 nm-es terasszal és 16,5 nm garázzsal eladó!
Világos, napfényes otthon
Az ingatlan tervezésekor kiemelt figyelmet kapott a természetes fény: a nagy méretű nyílászáróknak és a nyugati tájolásnak köszönhetően a ház egész nap napfényben fürdik.
Minden hálószobából közvetlen kijárat nyílik a kertbe, így a család minden tagja élvezheti a privát, zöld környezetet.

Különálló ikerház, kiváló elrendezés és tervezés jellemzi.
Az ikerház másik fele a telek hátsó részén található ( már elkelt így megismerheti leendő szomszédját)
Az épületek nem érnek össze: teljesen külön tetőszerkezettel, önálló bejárattal és egy autóbeállónyi távolsággal helyezkednek el.
Ez biztosítja a privát szférát és a barátságos, de nem zavaró szomszédi viszonyt.

Helyiségek listája

Nappali – 23,17 m²
Konyha + étkező – 14,55 m²
Szoba 1 – 10,47 m²
Szoba 2 – 9,93 m²
Szoba 3 – 10,04 m²
Fürdőszoba – 4,85 m²
WC – 3,24 m²
Előtér – 4,03 m²
Közlekedő – 10,12 m²
Gépészeti helyiség – 4,32 m²
Garázs – 16,50 m²
Terasz – 21,98 m²
Tároló/ tornác – 4,09 m²


Műszaki tartalom

Nyílászárók: Aluplast 8000, 6 légkamrás, 3 rétegű üvegezés, igény esetén redőny és szúnyogháló.

Fűtés-hűtés: Midea hőszivattyú, teljes felületen padlófűtés + oldalfali klímák.

Hőszigetelés: 15 cm grafitos homlokzati szigetelés, 15 cm lépésálló padlószigetelés.

Villany hálózat 3x20A
H energia 1x25 A
Energiatakarékos, korszerű, alacsony fenntartású otthon.

Elérhető kedvezmények és hitelek
-CSOK
-Illetékkedvezmény
-3%-os Otthon Start hitel
-5% Áfa visszatérítés

Céges építkezés – biztonságos, átlátható folyamat, referencia házakkal!

Várható átadás 2026. Április - Május

Ez az ingatlan tökéletes választás családoknak, akik nyugodt, barátságos környezetben keresnek új, modern, energiatakarékos otthont, jó közlekedéssel a főváros felé.
Hívj ne maradj le.
I.V.

Lakás részletei

Ár: 99 900 000 Ft
Méret: 128 négyzetméter
Azonosító: 11568232
Irodai azonosító: 387816
Cím: Viczián utca
Emelet: Földszint
Építőanyag: Tégla
Fűtés jellege: Hőszivattyú
Ingatlan állapota: Épülő
Komfort fokozat: Dupla komfort
Építési év: Új építésű
Tulajdonviszony: Saját
Kilátás: kertre néző
Egész szobák: 4

Egyéb jellemzők

  • Erkély
  • Garázs
  • Lift
  • Pince
  • Tároló

Térkép


Így keressen lakást négy egyszerű lépésben. Csupán 2 perc, kötelezettségek nélkül!

Szűkítse a lakások
listáját
Válassza ki a megfelelő
lakást
Írjon a hirdetőnek
Várjon a visszahívásra