Eladó lakás Tatabánya 69 990 000 Ft

Leírás

Tatabánya egyik legkedveltebb lakóparkjában – a Gerecse Lakóparkban – eladó ez a gondosan megtervezett, modern, ugyanakkor rendkívül otthonos lakás.

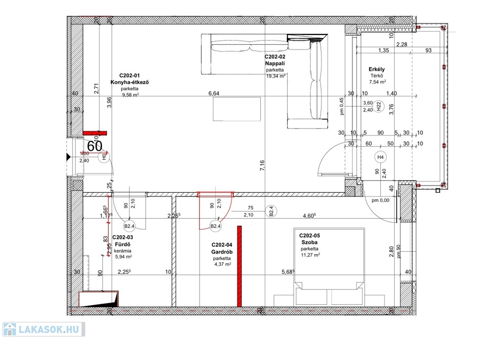
Ez a 2020-ban átadott, 50,5 m²-es, második emeleti ingatlan 7,5 m²-es erkéllyel rendelkezik, és minden részletében átgondolt, igényesen kialakított.

A lakás elrendezése praktikus és harmonikus: amerikai konyhás nappali, hálószoba, tágas kádas fürdőszoba és külön gardróbhelyiség biztosítja a kényelmet.

A hatalmas ablakfelületeknek köszönhetően a terek világosak, barátságosak, a nagy erkélyről pedig a parkosított, zárt udvarra nyílik kilátás – az üvegkorlát még inkább megnyitja a teret a természet felé.

A lakás energiahatékonysága kiemelkedő: a társasház napelemrendszerrel, kiváló hőszigeteléssel és saját gázkazánnal rendelkezik, így a rezsi rendkívül alacsony.

A belső terek egyedi megoldásokkal, minőségi anyagokkal készültek. Az egyedi tervezésű konyha beépített gépekkel (indukciós főzőlap, sütő, mikro, hűtő, fagyasztó, páraelszívó) a vételár részét képezi. A gardróbszoba mennyezetig érő szekrényekkel és tükörrel felszerelt – minden apró részlet a kényelmet szolgálja.

Klíma, redőny (a nappaliban elektromos) és szúnyogháló tovább növeli a komfortérzetet.

A lakópark zárt, biztonságos. Csendes környezetben fekszik, mégis minden elérhető közelségben van: üzletek, iskola, gyógyszertár. A buszmegálló egy perc, a vasútállomás néhány perc alatt elérhető gyalogosan. Az autóval közlekedők számra akár a városközpont, akár az autópálya néhány perc távolságban van.

A társasház liftes, a lakás teljesen akadálymentesen közelíthető meg, így nemcsak fiatal pároknak, hanem idősebbeknek is ideális választás.

Igény esetén a lakópark zárt területén belül parkolóhely is vásárolható (nem része a vételárnak, + 2.500.000 Ft).

Egy elegáns, kifinomult, mégis barátságos és otthonos lakás, ahol a modern városi élet kényelme és a nyugalom harmóniája találkozik.

Tökéletes választás azok számára, akik Tatabánya egyik legjobb lakókörnyezetében keresnek minőségi otthont.

Lakás részletei

Ár: 69 990 000 Ft
Méret: 50 négyzetméter
Azonosító: 11578501
Cím: Bárdos László utca
Emelet: 2. emelet
Építőanyag: Kérdezzen rá a hirdetőtől »
Fűtés jellege: Házközponti (egyedi mérővel)
Ingatlan állapota: Kitűnő
Építési év: 1-5 éves
Elhelyezkedés: Lakópark
Tulajdonviszony: Saját
Bútorozott: Részben bútorozott
Kilátás: kertre néző
Egész szobák: 2

Egyéb jellemzők

  • Erkély
  • Garázs
  • Klíma
  • Lift
  • Pince
  • Kertkapcsolat
  • Tároló
  • Kocsibeálló

Térkép


Így keressen lakást négy egyszerű lépésben. Csupán 2 perc, kötelezettségek nélkül!

Szűkítse a lakások
listáját
Válassza ki a megfelelő
lakást
Írjon a hirdetőnek
Várjon a visszahívásra