Eladó lakás Tata 89 990 000 Ft

Leírás

Szépet, újat, praktikusat... (mindenhez közel)
Kiváló lehetőség az új otthonodhoz vagy befektetéshez!
-Belvárosi lokáció
-kislétszámú lakóközösség
-élhető méretű és elosztású lakások

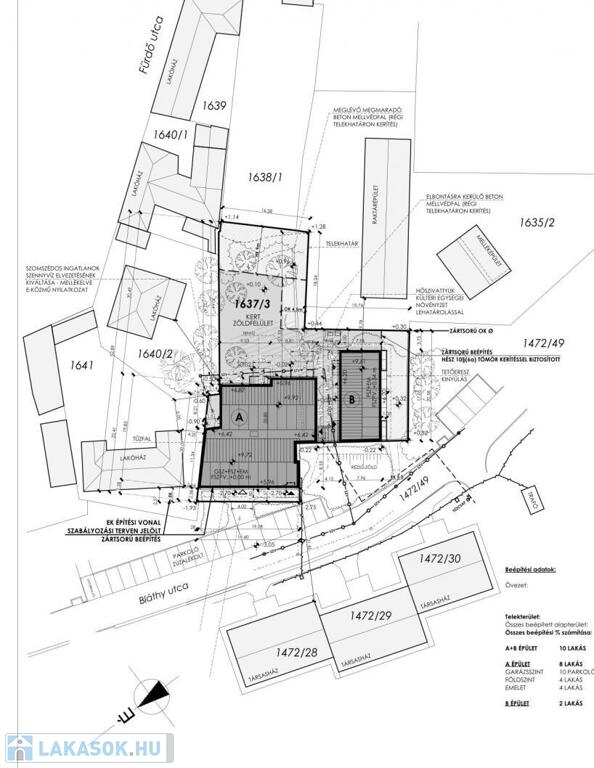
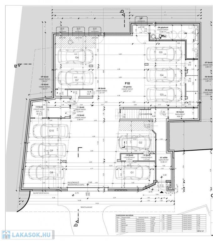
Tópart közelségét és belvárosi életformát kedvelők figyelmébe ajánljuk ezt a Tata belvárosában, Kossuth tér szomszédságában, a Bláthy Ottó utcában Épülő társasházi projektet, mely 10 db lakást , és 10db teremgarázst ( tárolókkal) foglal magába!
Újszerű környezet, modern kivitelezés, központi fekvés jellemzi, melynek köszönhetően az értékállósága biztosított, mind rövid, mind hosszútáv esetén is.
A lakópark otthonainak megálmodásakor egy olyan összetett megoldás született, amelyben az épület és a zöldterület együttese harmonikus környezetet alkot, mindezt pedig a Tóparttól és az Óvárostól egy karnyújtásnyira.

A kiváló referenciákkal és nagy építőipari múlttal rendelkező beruházó célja, az volt, hogy a lakók, nap, mint nap örömmel térjenek haza otthonukba, és élvezzék a lakások nyújtotta kényelmet és biztonságot.
A lakásokat a jól kihasználható terek, harmonikus külső-belső megjelenés, korszerű műszaki megoldások jellemzik, amik biztosítják az új építészeti értékek és a zöldkörnyezet harmonikus kapcsolatát.
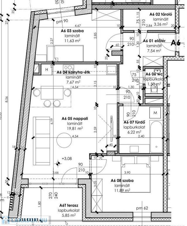
Ön pedig most még válogathat 2 vagy 3 szobás, változatos alapterületű és elrendezésű, erkélyesés illetve kertkapcsolatos lakások közül.
Melyek kialakításakor figyelembe vették:
- megfelelő számú gépkocsi számára garázsok,és tárolók is legyenek
-az alacsony fenntartást
(A ház energiaszintje mind a szigetelés, mind a 3 rétegű nyílászárók területén átlag feletti, így alacsonyan tartja a tulajdonosok rezsiköltségét)
A ház fűtését és melegvíz ellátását az alagsorban elhelyezett hőszivattyú fogja biztosítani, mely a lakásokban padlófűtéssel adja le a hőt.(A hőszivattyús klíma fogja adni )
Ami jellemző a lakópark lakásaira az az, hogy a kivitelezés során a korszerű, minőségi anyagok beépítésével, és ezek szakszerű kivitelezési munkálataival garantálják majd az ingatlanok kiemelkedő műszaki, illetve esztétikai minőségét.


A kislétszámú társasház arculata, a lakóépület a teremgarázsok és a telek, elrendezésének köszönhetően, magában hordozza mindazon előnyös alapfeltételt, amely egy valódi modern lakópark kialakításához szükséges.
Nem utolsó sorban pedig a belvárosi lokációjának köszönhetően a Lakópark infrastrukturális ellátottsága kiváló, a különböző közintézmények, üzletek, buszmegállók, iskola, óvoda könnyen és gyorsan elérhetőek.

Mind ezekhez pedig társul hogy a magas színvonalú kivitelezésről ,megbízható, SZÁMOS REFERENCIÁVAL rendelkező Beruházó gondoskodik,mely többek között a szintén Tatán megvalósult Levendulakert lakópark 72 sorházi lakását ,a tavaly átadott 8 lakásos Komárom utcai projektet valamint a Csever utcai 8db sorházakat és a Bajcsy Zsilinszky utcában épült 6 lakásos társasházakat is építette.
A külső, tetszetős megjelenését a beruházó biztosítja! A belső enteriőr kialakítását természetesen már közösen alakítja ki Ön és családja a kivitelezővel.
A két épület együttes 2027 év végi MŰSZAKI ÁTADÁSSAL köthetők le.
Minden lakáshoz tartozik privát telekrész vagy terasz. A parkolóhelyek és tárolók az épület alatti teremgarázsban lesznek elhelyezve. Tárolók megvásárolhatók limitált mennyiségben 1.5MFt+ ÁFA vételáron.
Teremgarázs vételára: 8.255.000Ft
Amennyiben ön úgy gondolja, hogy szeretné eme a lakópark minden szépségét, és kényelmét élvezni,akkor válasszon egyet és hívjon a részletekért!
A projekthez akár kamattámogatott lakásvásárlási hitel:3%-os Otthon Start Program, Babaváró hitel és CSOK++ HITEL is (+ 5%-os ÁFA vissza igénylés CSOK + Hitelnél)!!
is igényelhető melynek részleteivel is hívjon bizalommal.
Szabó Szilvia
Tel.:06 70 367 76 36

Lakás részletei

Ár: 89 990 000 Ft
Méret: 69 négyzetméter
Azonosító: 11573290
Irodai azonosító: 9513
Cím: Tata
Emelet: 1. emelet
Építőanyag: Kérdezzen rá a hirdetőtől »
Fűtés jellege: Egyéb
Ingatlan állapota:
Építési év: Új építésű
Egész szobák: 3

Egyéb jellemzők

  • Erkély

Így keressen lakást négy egyszerű lépésben. Csupán 2 perc, kötelezettségek nélkül!

Szűkítse a lakások
listáját
Válassza ki a megfelelő
lakást
Írjon a hirdetőnek
Várjon a visszahívásra