Eladó lakás Szolnok 79 350 000 Ft

Leírás

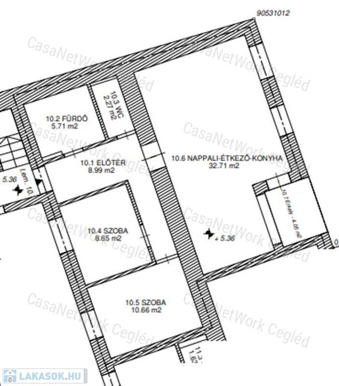
A CasaNetWork Ingatlanhálózat ceglédi irodája eladásra kínálja  174602190 ID számú lakást liftes társasházban.

ELADÓ Szolnokon belvárosában, exkluzív 32 lakásos társasház 10. számú lakása, melynek átadása 2026. II. negyedévében várható. Jelen ingatlan a 1.emeleten helyezkedik el és 69 m² fűtött lakótérrel rendelkezik, erkélyes.

  • A ház tégla falazattal (60 cm vastag) és 15 cm hőszigeteléssel készült. 
  • A fűtésről házközponti kazán gondoskodik, a lakások padlófűtésűek. A melegvizet villanybojler biztosítja.
  • Nyílászárói 3 rétegű hőszigetelt műanyag nyílászárók, antracit színben. A lakások központi részén a Konyha-Nappali-Étkezőben távirányítású elektromos zsalugáterek kaptak helyet, hálószobáiban távirányítású elektromos redőny biztosítja a kellő árnyékolást.
  • Klíma berendezés és pára elszívás lehetősége kiépítve.

A lakásokhoz külön helyrajzi számmal rendelkező garázs vásárolható, mérete 17 nm. Ára: 12.000.000 Ft, vagy udvari beálló 6.000.000 Ft. Továbbá tárolók is rendelkezésre állnak, megvásárolhatóak.

A társasházban több méretű ingatlan elérhető 34 nm-től egészen 108 nm-es lakásig. 

Az ingatlan modern, energiatakarékos kialakítású, ideális választás egyedülállók, párok, családok számára,  akik jól megközelíthető környezetben keresnek új otthont a belvárosban. A lakás kulcsrakész állapotban kerül átadásra 2026 II. negyedévében.

100 méterre a városközpont, másik irányba 500 méterre a Tisza part található.

Ügyfeleink számára díjmentes, bankfüggetlen hitelügyintézést biztosítunk. Irodánk teljes körű segítséget tud nyújtani hitelekhez és az összes államilag finanszírozott családi támogatásokhoz!

Megtekintése kizárólag előre egyeztetett időpontban lehetséges!

Amennyiben a CasaNetWork – Cegléd kínálatában szereplő, 174602190 azonosítószámú új építésű szolnoki lakás vagy bármely más ingatlan felkeltette érdeklődését, forduljon hozzánk bizalommal a megadott elérhetőségeken!

Felhívjuk figyelmét, hogy a hirdetésben szereplő információk megbízónktól származnak, ezért azok pontosságáért felelősséget nem tudunk vállalni.

CasaNetWork – Ingatlanban otthon vagyunk.

Lakás részletei

Ár: 79 350 000 Ft
Méret: 69 négyzetméter
Azonosító: 11590267
Irodai azonosító: 174602190
Emelet: 1. emelet
Építőanyag: Tégla
Fűtés jellege: Házközponti (egyedi mérővel)
Ingatlan állapota: Kitűnő
Egész szobák: 3

Így keressen lakást négy egyszerű lépésben. Csupán 2 perc, kötelezettségek nélkül!

Szűkítse a lakások
listáját
Válassza ki a megfelelő
lakást
Írjon a hirdetőnek
Várjon a visszahívásra