Eladó lakás Szentendre 95 900 000 Ft

Leírás

SZENTENDERÉN, ELADÓ EGY 2. EMELETI ÚJÉPÍTÉSŰ TÁRSASHÁZI LAKÁS!





KÖRNYÉK:

A lakás csendes, nyugodt környezetben helyezkedik el, 2 perc sétára található a buszmegálló, így könnyen megközelíthető Szentendre központja, vagy akár Budapest is. A Spar egy 20 perces sétával könnyedén megközelíthető. A közelben számos cukrászda elérhető, emellett dohánybolt, gyógyszertár is van a közelben.





A HÁZ JELLEMZŐI:

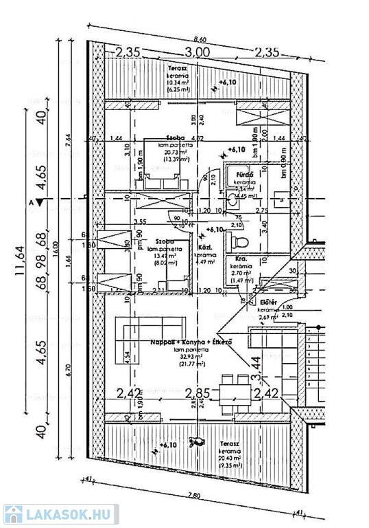
-A lakás alapterülete: 85 nm.

-Plusz 2db erkély: 10,4 nm és 20,4 nm.

-Az társasház 2020-ban épült 38 cm-es POROTHERM téglából és 15 cm-es Dryvit szigetelést kapott.

-A nyílászárók 3 rétegű műanyagból vannak.

-A fűtésért egy Baxi márkájú kondenzációs gázkazán felel.

-3 db klíma került beszerelésre a lakásba, amelyek fűtő-hűtő funkciót is ellátnak.

-A rezsi körülbelül 30-35 ezer Ft körül alakul.

-Közös költség: 12 ezer Ft.

-A lakáshoz tartozik egy kültéri parkolóhely, mely elektromos úszókapuval van elzárva.





FINANSZÍROZÁS:

- Banki finanszírozással is megvásárolható, melyben irodánk ingyenes tanácsadással áll rendelkezésükre!

- Az energetikai besorolása miatt, az ingatlanra kedvezményes hitel igényelhető.

VEVŐINK RÉSZÉRE A KÖZVETÍTÉS DÍJTALAN! A hirdetésben szereplő adatok tájékoztató jellegűek!

Lakás részletei

Ár: 95 900 000 Ft
Méret: 85 négyzetméter
Azonosító: 11566307
Irodai azonosító: 23230
Emelet: 2. emelet
Építőanyag: Kérdezzen rá a hirdetőtől »
Fűtés jellege: Egyedi
Ingatlan állapota: Átlagos
Egész szobák: 3

Így keressen lakást négy egyszerű lépésben. Csupán 2 perc, kötelezettségek nélkül!

Szűkítse a lakások
listáját
Válassza ki a megfelelő
lakást
Írjon a hirdetőnek
Várjon a visszahívásra