Eladó lakás Szekszárd 59 500 000 Ft

Leírás

Ideális választás lehet családok, vagy akár első lakásvásárlók számára is.
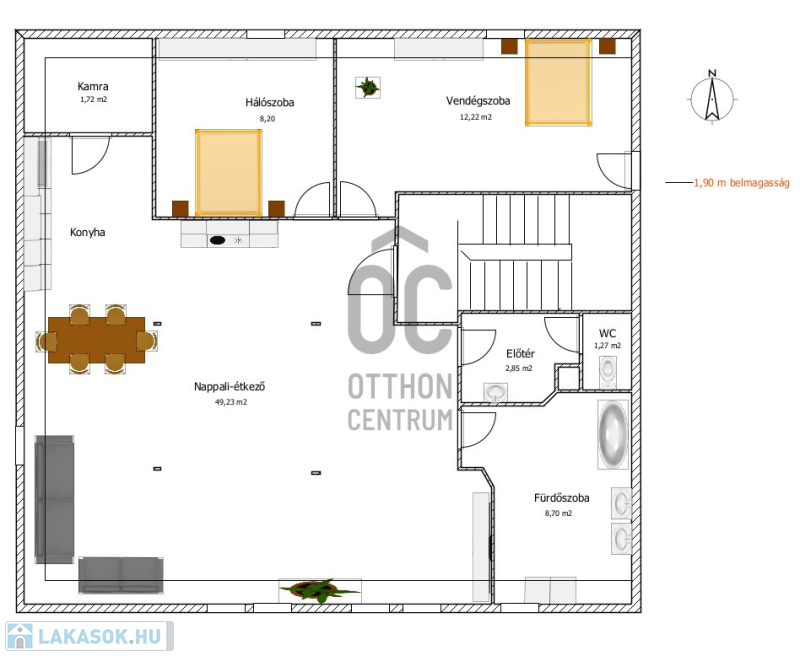
A tágas, 84 négyzetméteres, klimatizált lakásban a nappali, étkező, konyha egy térben található, így bőséges teret biztosít családja, vagy a baráti összejövetelek számára.
Ezen felül 2 további szoba biztosítja a család kényelmét.
Az ingatlan állapota kiváló, a modern, amerikai konyhás elrendezés a kényelmet és a stílust ötvözi.
A konyha, a tágas fürdő és mosdó járólappal fedett, a szobákban és a közösségi térben új laminált burkolat található.
A lakás padlófűtéses, fűtése gáz cirkó kazánnal üzemel, a nyári hónapokban pedig a klíma biztosítja a kellemes hőmérsékletet.
A tetőtér Rockwool szigetelőrendszerrel (25 cm vastagságban) ellátott, mely alatt tűzálló gipszkarton található.
Zárt lépcsőházból érhető el, önálló riasztó rendszerrel védett.
Az ingatlan tehermentes, azonnal birtokba vehető.
A környék ellátottsága kiváló, hiszen a városközpont közelsége minden szükséges szolgáltatást elérhetővé tesz.
Bolt, iskola, orvosi rendelő és szórakozási lehetőségek mind pár perc sétára találhatóak.
A közlekedés is kitűnő, hiszen a tömegközlekedési megállók közvetlenül a közelben helyezkednek el, így könnyedén elérheti a város többi részét, valamint a környező településeket is.
Az ingatlan csendes, biztonságos környéken található, ahol a szomszédság barátságos és rendezett.
Ez a lakás nemcsak egy új otthon, hanem egy kiváló befektetési lehetőség is, hiszen a belvárosi elhelyezkedés és a folyamatosan növekvő kereslet garantálja az értékállóságot.
Ne habozzon, ha kérdései lennének, vagy szeretné megtekinteni ezt a páratlan ingatlant, bizalommal kereshet minket.
Az ingatlanpiac dinamikusan változik, így érdemes mihamarabb lépni, hogy ne maradjon le erről a remek lehetőségről!

Kedves Ügyfelünk, az ingatlanról videót is készítettünk. Ha ezt a hirdetést az Otthon Centrum weboldalán nézi, akkor a videóra a képek után tud kattintani. Ha egy másik weboldalon találta ezt a hirdetést, kérem nyissa meg az Otthon Centrum weboldalát, kattintson a „Regisztrációs szám keresése” menüpontra, és írja be ezt a regisztrációs számot a keresőbe: H505400. Itt meg tudja tekinteni az ingatlanról készült videót. Vagy írjon nekem, és szívesen elküldöm a videót.

Az energetikai tanúsítvány elkészítése folyamatban van!

Eladó belvárosi tetőtéri lakás 2. emelet 84 m2 nappali-étkező-konyha 2 háló zárt lépcsőház riasztó, gázos, klimatizált

Lakás részletei

Ár: 59 500 000 Ft
Méret: 84 négyzetméter
Azonosító: 11559978
Építőanyag: Tégla
Fűtés jellege: Cirkó
Ingatlan állapota: Kitűnő
Kilátás: utcai
Egész szobák: 3

Egyéb jellemzők

  • Erkély
  • Garázs
  • Lift
  • Kertkapcsolat
  • Tároló
  • Kocsibeálló

Így keressen lakást négy egyszerű lépésben. Csupán 2 perc, kötelezettségek nélkül!

Szűkítse a lakások
listáját
Válassza ki a megfelelő
lakást
Írjon a hirdetőnek
Várjon a visszahívásra