Eladó lakás Székesfehérvár 42 990 000 Ft

Leírás


Ez az otthon ideális választás gyerekes családoknak, vagy azoknak a fiataloknak akik most kezdik a közös életüket.

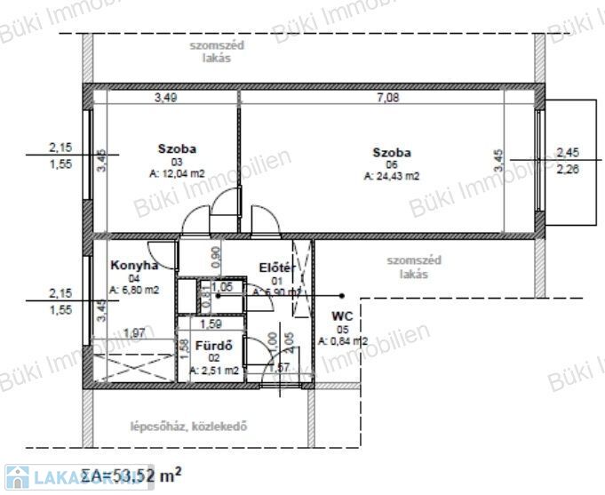
Az ingatlan praktikus elrendezésének köszönhetően egy tágas nappali, egy hangulatos kis hálószoba, külön fürdő és WC kapott helyet, valamint egy világos konyha, amelyhez egy kamra is tartozik.

Kisgyerek mellett a tartósabb otthonlét biztos nem lesz az anyuka terhére, mert a lakás egyik oldala keletre néz, míg a másik nyugatra, így tehát a nagy ablakoknak köszönhetően a nap minden szakában sok természetes fény jut a helyiségekbe, amely friss és vidám életteret kínál.  Persze a fényt mindenki szereti, így a lakást idősebbeknek is jó szívvel ajánlom, akik a legszívesebben a földszínt és a második emelet közé szeretnének költözni, pláne úgy, hogy az ablakok a nyáron hűs, nagy lombokkal rendelkező fás parkra néznek.  A nagyszobából nyíló hangulatos, kényelmes méretű erkélyen elfér egy kis asztal két székkel a reggeli kávézásokhoz, vagy az esti baráti beszélgetésekhez.

A lakás jelenleg is lakható állapotú, de ha az új lakó szeretné, némi frissítéssel igazán egyedivé és hangulatossá tehető. Sokak vágya egy olyan otthon, amit a saját ízlésére lehet formálni.

A lakás egy tágas park szomszédságában helyezkedik el, ahol a kicsik nagy örömére egy modern és nagy játszótér is helyet kapott, de innen akár 15 perc sétával eljutunk a Sóstói Természetvédelmi Területhez és a tanösvényen kalandos túrákat tehetünk.  A környéken találhatunk még új állapotú bölcsödét, óvodát, játszóházat, uszodát, de 2 iskolát is.

Ez az ingatlan számos lehetőséggel bír, ha Ön is úgy látja benne a fantáziát, ahogy én, ne várjon arra, hogy más csapjon le rá! Hívjon, nézze meg és legyen a boldog tulajdonosa!

Ha kedvező hitellehetőséget szeretne igénybe venni az ingatlan vásárláshoz, hívjon! Banki tanácsadónk ingyenes konzultációt követően 12 bank ajánlata közül választja ki az Önnek legmegfelelőbbet.

Lakás részletei

Ár: 42 990 000 Ft
Méret: 54 négyzetméter
Azonosító: 11553286
Irodai azonosító: 205704313
Cím: Rádió utca
Emelet: 1. emelet
Építőanyag: Tégla
Fűtés jellege: Konvektoros
Ingatlan állapota: Felújított
Komfort fokozat: Összkomfort
Egész szobák: 2

Egyéb jellemzők

  • Lift

Így keressen lakást négy egyszerű lépésben. Csupán 2 perc, kötelezettségek nélkül!

Szűkítse a lakások
listáját
Válassza ki a megfelelő
lakást
Írjon a hirdetőnek
Várjon a visszahívásra