Eladó lakás Szeged 94 900 000 Ft

Leírás

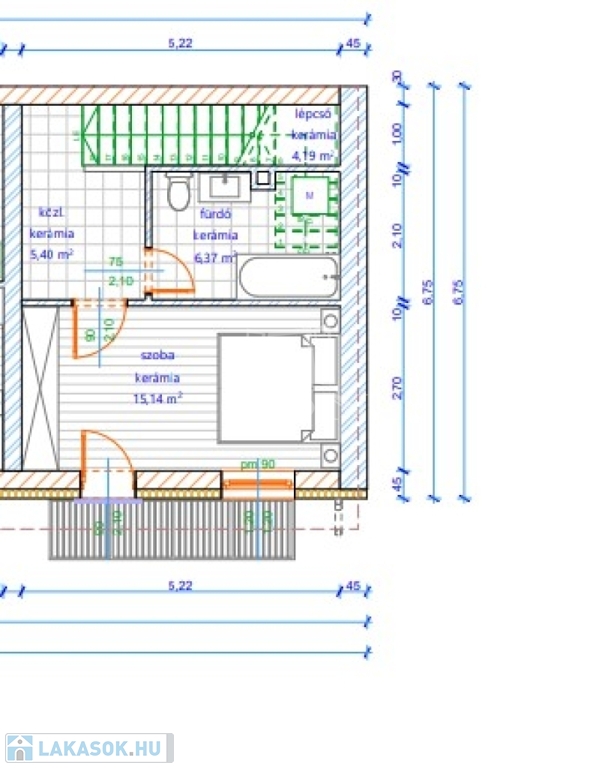
Eladó új építésű, belvárosi kertkapcsolatos lakások Szegeden

Belvárosi – csendes belső udvarban helyezkednek el
Ingatlan típusa: társasházi lakás
Alapterület:62 M2+ 20M2 TETŐ TERASZ
Elrendezés: amerikai konyhás nappali + 2 hálószoba

Főbb jellemzők:

Csendes, mégis belvárosi környezet

2 méter mély, 60 cm széles C25-ös beton alapozás, Leier 30 N/F tégla falazat 15 cm hőszigeteléssel

Hanggátló válaszfalak a teljes nyugalomért

Bramac antracit tetőcserép

3 rétegű üvegezésű műanyag nyílászárók

Padlófűtés (Westend 24 kW-os gázkazán + 100 l-es hőtároló)

3,5 kW-os hűtő-fűtő klíma

Energetikailag korszerű kivitelezés

Kíváló minőségű anyaghasználat

A VÉTELÁR TARTALMAZ 1M Ft KONYHABÚTORT , 10000Ft/M2 HIDEG-MELEG BURKOLATOKAT, 500e Ft SZANITEREKET , 100e Ft/DB BELTÉR AJTÓKAT.

ÖN MEGÁLMODJA ÉS 60 NAPON BELLÜL MÁR A SAJÁT ÍZLÉSE SZERINT KIALAKÍTOTT OTTHONBAN LAKIK.

További lehetőségek:

Kocsibeálló vásárolható: 5,5 millió Ft

Garázs vásárolható: 12 millió Ft


HITELKÉPES LAKÁSOK!

Ez a lakás ideális választás mindazok számára, akik belvárosi elhelyezkedést, modern technológiát és privát életteret keresnek Szeged szívében, de rendívüli lehetőség befektetési célra is!

TEKINTSE MEG SZEMÉLYESEN REFERENCIA INGATLANUNKAT!

Lakás részletei

Ár: 94 900 000 Ft
Méret: 62 négyzetméter
Azonosító: 11582834
Irodai azonosító: 390239
Cím: Szeged Belvárosi új lakások eladók!
Emelet: Földszint
Építőanyag: Tégla
Fűtés jellege: Egyedi
Ingatlan állapota: Kitűnő
Komfort fokozat: Összkomfort
Építési év: Új építésű
Tulajdonviszony: Saját
Kilátás: udvari
Egész szobák: 3

Egyéb jellemzők

  • Erkély
  • Garázs
  • Lift
  • Pince
  • Tároló

Térkép


Így keressen lakást négy egyszerű lépésben. Csupán 2 perc, kötelezettségek nélkül!

Szűkítse a lakások
listáját
Válassza ki a megfelelő
lakást
Írjon a hirdetőnek
Várjon a visszahívásra