Eladó lakás Szeged 82 000 000 Ft

Leírás

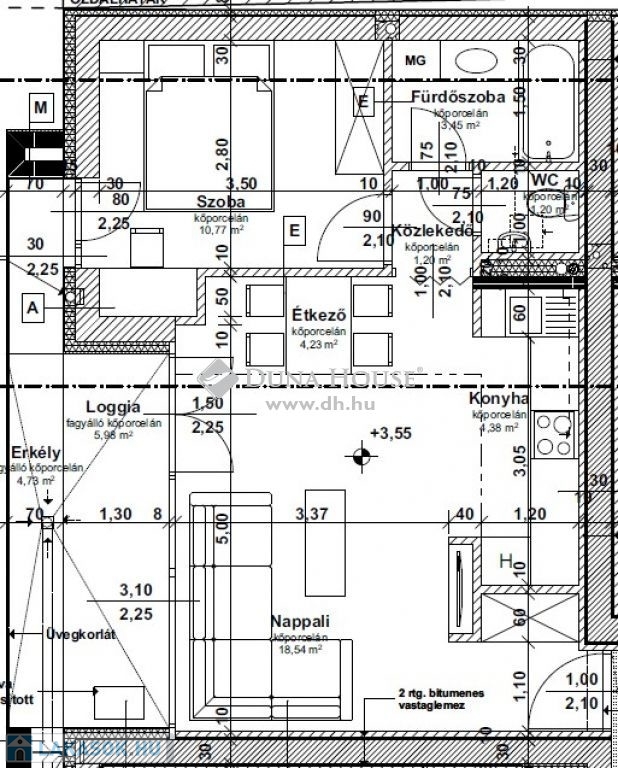
Eladó Szeged belvárosának frekventált utcájában egy teljesen újépítésű, de már kész társasházban 44-99 nm közötti lakások, garázs vásárlási lehetőséggel. 5 szintes liftes társasház igényes közösségi terekkel. Minden lakásban egyedi méréssel hőszivattyús mennyezeti hűtés-fűtés, padlófűtés lett kialakítva. 3 rétegű üvegezésű, 6 légkamrás homlokzati nyílászárók kerültek beépítésre, elektromos redőnyökkel. A lakások önálló helyrajzi számmal rendelkeznek.
Várom hívását a műszaki tartalommal kapcsolatban.

Lakás részletei

Ár: 82 000 000 Ft
Méret: 54 négyzetméter
Azonosító: 11482569
Irodai azonosító: PR081229/LK/20421-4820946
Emelet: 1. emelet
Építőanyag: Tégla
Fűtés jellege: Hőszivattyú
Ingatlan állapota: Épülő
Építési év: Új építésű
Egész szobák: 2

Egyéb jellemzők

  • Lift

Térkép


Így keressen lakást négy egyszerű lépésben. Csupán 2 perc, kötelezettségek nélkül!

Szűkítse a lakások
listáját
Válassza ki a megfelelő
lakást
Írjon a hirdetőnek
Várjon a visszahívásra