Eladó lakás Szeged 76 900 000 Ft

Leírás

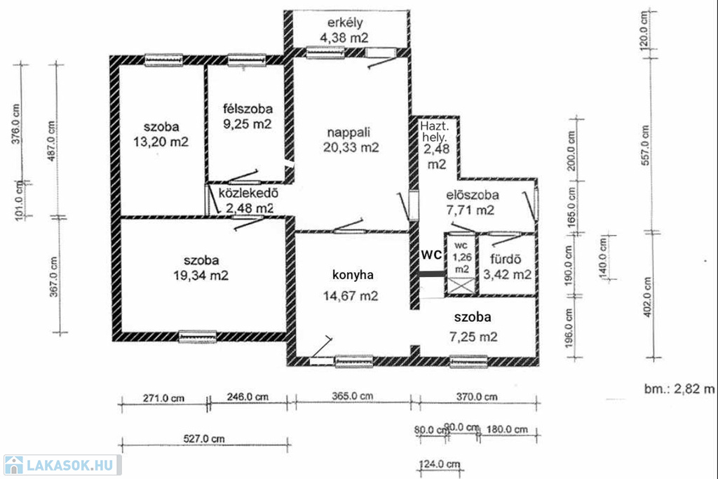
Szeged-Dorozsma, Barátság utcában, kertkapcsolatos 106 nm-es, 3+2 szobás, teljes körűen, igényesen felújított, földszinti téglalakás eladó. A háznál igény esetén 18 nm-es garázs vásárlási lehetőség is van, ezen kívül az udvarban is lehet parkolni. Főbb jellemzők:
-2023-ban történt a felújítás
-még garanciás kondenzációs kazán
-hőszigetelt, 3 rétegű ablakok, szúnyoghálók, redőnyök
-több ponton záródó, új bejárai ajtó
-új burkolatok
-glettelt, festett falak
-új villanyhálózat
-5 db hűtő-fűtő klíma (majd minden helyiségben)
A lakás jó elosztású: 5 külön bejáratú szoba, erkély, külön háztartási helyiség, étkező konyha – kijárattal a kertbe, ahol saját kertész van. Napfényes, kelet-nyugat tájolású. Az ingatlan alacsony rezsiköltségű: a gázszámla havi elosztással 10.000 Ft (főzőgáz és meleg vízzel együtt), közös költség 15.000 Ft. A 8 lakásos, rendezett társasház lépcsőházának összes nyílászárója is új, műanyagra cserélt. Saját tároló tartozik a lakáshoz. A zöld, csendes környezetben a szomszédságban megtalálható buszmegálló, boltok, iskola, óvoda.

Lakás részletei

Ár: 76 900 000 Ft
Méret: 106 négyzetméter
Azonosító: 11598102
Cím: Barátság utca
Emelet: Földszint
Építőanyag: Tégla
Fűtés jellege: Cirkó
Ingatlan állapota: Kitűnő
Komfort fokozat: Összkomfort
Építési év: 21-50 éves
Elhelyezkedés: Társasház
Tulajdonviszony: Saját
Kilátás: utcai
Egész szobák: 3
Fél szobák: 2

Egyéb jellemzők

  • Erkély
  • Garázs
  • Klíma
  • Kertkapcsolat
  • Tároló
  • Kocsibeálló

Térkép


Így keressen lakást négy egyszerű lépésben. Csupán 2 perc, kötelezettségek nélkül!

Szűkítse a lakások
listáját
Válassza ki a megfelelő
lakást
Írjon a hirdetőnek
Várjon a visszahívásra