Eladó lakás Szeged 72 000 000 Ft

Leírás

Szegeden, közel a belvároshoz, kiváló környéken, ideális befektetés, kulcsrakész ár!
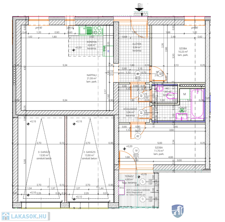
Új építésű 10 lakásos társasházban eladó 64,27 négyzetméteres + 4,6 terasz, előtér+nappali+2 db hálószoba + fürdőszoba + WC elrendezésű, földszinti, kertkapcsolatos lakás, szerkezetkész állapotban.
A társasházban további lakások is leköthetők, a legkisebb 47,79 négyzetméterestől, a legnagyobb 157 négyzetméteresig, különböző alapterületű lakások választására van lehetőség, minden lakásra jellemző, az átgondolt térkihasználás és funkcionálisan lehető legjobb elrendezés. A lakásokhoz garázsok is megvásárolhatók, 10.000.000,- Ft./garázs, illetve udvari autóbeálló helyek 4.000.000,- Ft./beálló áron.
A társasház megközelíthetősége kiváló, pár perces sétával elérhető a belváros, egyetemek, bevásárló központ, külön előnye a körutak közötti elhelyezkedése miatt, hogy személyautóval is könnyen megközelíthető, kiváló a tömegközlekedés, csöndes környék, a városi lét minden előnyével.

Az ingatlan kivitelezésében és műszaki tartalmában megfelel a mai kor elvárásainak, a teljesség igénye nélkül néhány adat
- Külső teherhordó falak: 30 cm vastag falazóblokk. A külső falazatra 10 illetve 18 cm- es hőszigetelés kerül.
- Belső teherhordó falak: 30 cm vastag hanggátló falazóblokk
- Válaszfalak: 10 cm vastag falazóblokk
- Födém, Monolit vasbeton födém
- Külső nyílászárók Rehau rendszerű műanyag nyílászárók 3 rétegű hőszigetelt üvegezéssel
- Fűtés gázüzemű kondenzációs központi kazánról történik a lakások fűtése. Minden helyiségben padlófűtés van
kialakítva, a fürdőszobákban plusz egy törölközőszárító radiátor.

Amennyiben részletes tájékoztatást kér az ingatlanról, illetve kérdés merült fel önben, hívjon bátran. tel.: +36302490482
dr. Vass Zoltán
(További kínálatunkat keresse a VING hivatalos weboldalán.)

Lakás részletei

Ár: 72 000 000 Ft
Méret: 64 négyzetméter
Azonosító: 11393059
Irodai azonosító: 578298
Erkély mérete: 5.00 négyzetméter
Építőanyag: Tégla
Fűtés jellege: Házközponti (egyedi mérővel)
Ingatlan állapota: Szerkezetkész
Komfort fokozat: Összkomfort
Egész szobák: 3
Nappalik: 1

Egyéb jellemzők

  • Erkély
  • Garázs
  • Klíma
  • Lift
  • Pince
  • Kertkapcsolat

Így keressen lakást négy egyszerű lépésben. Csupán 2 perc, kötelezettségek nélkül!

Szűkítse a lakások
listáját
Válassza ki a megfelelő
lakást
Írjon a hirdetőnek
Várjon a visszahívásra