Eladó lakás Szeged 70 000 000 Ft

Leírás

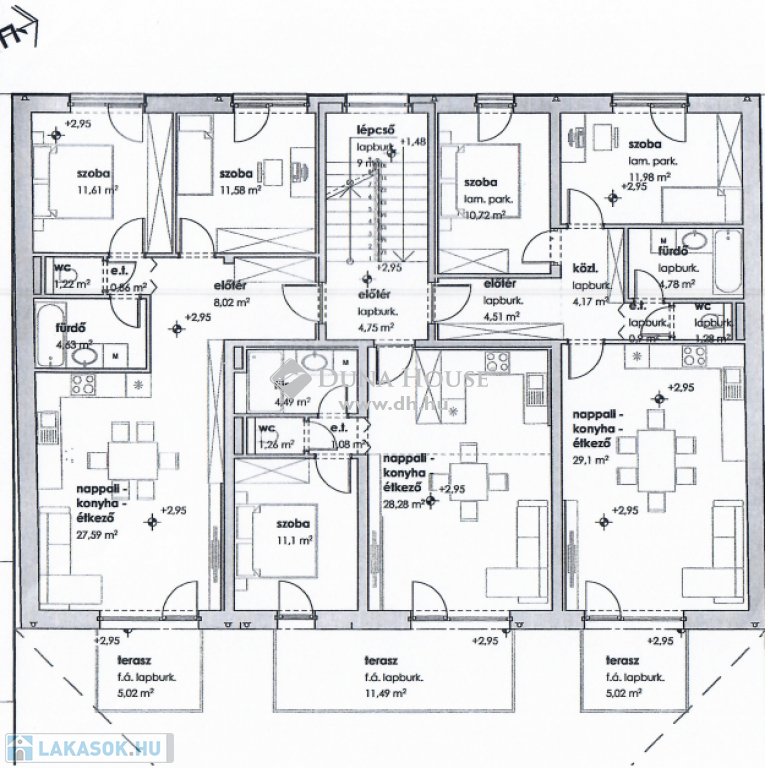
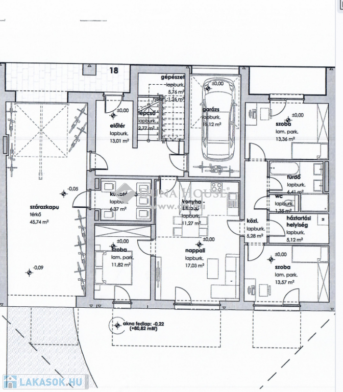
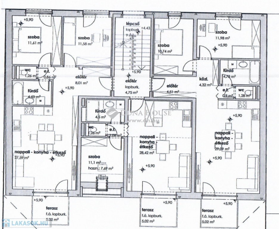
Szeged Alsóváros ÚJÉPÍTÉSŰ TÁRSASHÁZI LAKÁSOK !!!!Szeged-Alsóváros, Testnevelési Főiskola közelében 10 lakásos, emelt szintű szerkezetkész társasház épül.A modern, 4 szintes épület ( fsz., 1.em., 2.em., 3.em (tetőtér ) lakásai változatos méretben készülnek, erkéllyel , rendelkeznek.A lakásokhoz opcionálisan zárt udvari parkoló vásárolható!Várható szerkezetkész átadás: 2025 II.n.évSzeged Alsóváros ÚJ ÉPÍTÉSŰ TÁRSASHÁZI LAKÁSOK !!!!Szeged-Alsóváros, Testnevelési Főiskola közelében 10 lakásos, emelt szintű szerkezetkész társasház épül.A modern, 4 szintes épület ( fsz., 1.em., 2.em., 3.em (tetőtér ) lakásai változatos méretben készülnek, erkéllyel , rendelkeznek. Modern és igényes lakások ,nyugodt környezet.Maximális helykihasználás a lakásokban.Energiatakarékos kivitelezés az alacsony rezsiköltségért. Homlokzat, udvar, közösségi terek 100 %-os elkészültségFalazat:-tégla falazatFűtés – hűtés: geotermikus fűtés, hőszivattyús (padlófűtés) hőmennyiség mérő minden lakáshozHűtés -fan coilosNyílászárók:- műanyag nyílászárók redőny előkészítés- Villanyszerelés csövezés- Víz szerelés- Hanggátló előtét falak- VakolatA lakásokhoz opcionálisan zárt udvari parkoló vásárolható!Várható szerkezetkész átadás: 2025 II.n.évA 4. számú lakás az épület 1. emeletén található, alapterülete 66,54 m2, melyben nappali, konyha-étkező (29m2), 2 szoba (11,98 10,72m2) és fürdő került kialakításra.A környezettel való kapcsolatot a 5,02 m2-es erkély biztosítja.Össz terület: 69,5m2 (1/2 erkéllyel ) A lakások emelt szintű szerkezetkész állapotban kerülnek értékesítésre, de a Beruházó megrendelés esetén vállalja a megvásárolt ingatlan kulcsrakész állapotra történő kivitelezést.Az ingatlan elhelyezkedése kiváló, hiszen a Belváros bármely pontja néhány perc alatt elérhető.Közvetlen közelében villamosmegálló, klinikák valamint számos oktatási intézmény található.Az autóút mellett európai szintű kerékpár- és gyalogúton be is sétálhatunk vagy kerekezhetünk a Belvárosba.Ajánlom azoknak, akik modern otthont szeretnének, de befektetési célra is remek lehetőség.A Beruházó megrendelés esetén vállalja a megvásárolt ingatlan kulcsrakész állapotra történő kivitelezést.

Lakás részletei

Ár: 70 000 000 Ft
Méret: 69 négyzetméter
Azonosító: 11506158
Irodai azonosító: PR065553/LK/19769-4898622
Cím: 69 nm-es lakás eladó Szeged
Emelet: 1. emelet
Építőanyag: Tégla
Fűtés jellege: Hőszivattyú
Ingatlan állapota: Épülő
Építési év: Új építésű
Egész szobák: 3

Térkép


Így keressen lakást négy egyszerű lépésben. Csupán 2 perc, kötelezettségek nélkül!

Szűkítse a lakások
listáját
Válassza ki a megfelelő
lakást
Írjon a hirdetőnek
Várjon a visszahívásra