Eladó lakás Szeged 51 900 000 Ft

Leírás

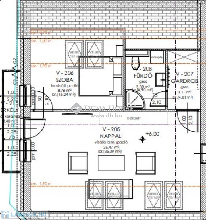
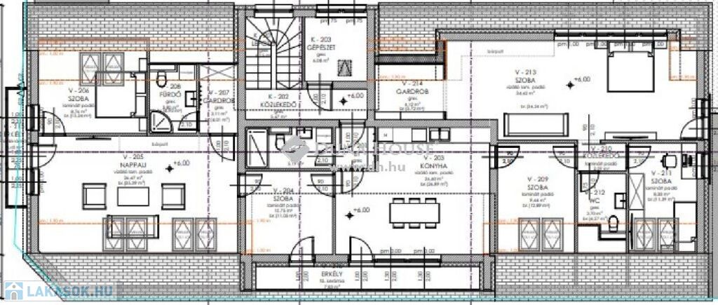
MODERN, KULCSRAKÉSZ, ENERGIAHATÉKONY OTTHONOK!Szeged-Móraváros, Petőfi Sándor sugárút vonzáskörzetében 5 lakásos projekt épül.A modern, 3 szintes épület ( fsz., 1.em., 2.em. (tetőtér) ) lakásai változatos méretben készülnek, erkéllyel rendelkeznek. Várható kulcsrakész átadás: 2025.10. hóA 6. számú lakás az épület 2. emeletén (tetőtér) található, alapterülete 42,14/59,1 m2, melyben amerikai konyha + nappali, egy háló és fürdő került kialakításra.A környezettel való kapcsolatot a 3,11 m2-es erkély biztosítja.Össz terület: nettó 43,695 m2 (1/2 erkéllyel)Az ingatlan használati megosztással (saját mérőórák) eladó, a szomszédos lakásközös előtérből nyílik.Néhány műszaki jellemző:Homlokzat:-15 cm EPS zártcellás szigetelés az építész terveknek megfelelően.Falazat:- külső főfalak 30-as N+F téglából, - a lakáselválasztó - és a közösségi tereket elválasztó falak 30-as hanggátló, a belső válaszfalak 10 N+F téglából készülnekFűtés – hűtés:- a lakások fűtését központosított levegő-víz hőszivattyú rendszer fogja biztosítani, amely fűtési szezonban fűtő, fűtési szezonon kívül hűtő funkcióban üzemel.- minden lakásban padlófűtés kerül kiépítésre- minden lakóegységhez biztosított a hőmennyiség mérőKülső nyílászárók:- kívül antracit, belül fehér GEALAN vagy azzal egyenértékű 6 kamrás műanyag 3 rétegű üvegezéssel.Redőnyök:- vakolható redőnytokos redőnyök kerülnek kiépítésre.Klíma: - 1 db oldalfali Fan-Coil kiállás a bejárati ajtótól 4 méterre biztosított. Az ingatlan elhelyezkedése kiváló, hiszen a Belváros bármely pontja néhány perc alatt elérhető.Ajánlom azoknak, akik modern otthont szeretnének, de befektetési célra is remek lehetőség.MINDEN TOVÁBBI RÉSZLETTEL, VALAMINT MŰSZAKI ALAPRAJZZAL ÉS SZEMÉLYES MEGTEKINTÉSSEL KAPCSOLATBAN VÁROM HÍVÁSÁT!FORDULJON HOZZÁM BIZALOMMAL! MODERN, KULCSRAKÉSZ, ENERGIAHATÉKONY OTTHONOK!Szeged-Móraváros, Petőfi Sándor sugárút vonzáskörzetében 5 lakásos projekt épül.A modern, 3 szintes épület ( fsz., 1.em., 2.em. (tetőtér) ) lakásai változatos méretben készülnek, erkéllyel rendelkeznek. Várható kulcsrakész átadás: 2025.10. hó Nyugodt környezetEnergiahatékony megoldásokMinden további részlettel kapcsolatban várom hívását! Forduljon Hozzám bizalommal!

Lakás részletei

Ár: 51 900 000 Ft
Méret: 43 négyzetméter
Azonosító: 11403485
Irodai azonosító: PR078128/LK/21025-4681484
Cím: 43 nm-es lakás eladó Szeged
Emelet: 2. emelet
Építőanyag: Tégla
Fűtés jellege: Hőszivattyú
Ingatlan állapota: Épülő
Építési év: Új építésű
Egész szobák: 2

Térkép


Így keressen lakást négy egyszerű lépésben. Csupán 2 perc, kötelezettségek nélkül!

Szűkítse a lakások
listáját
Válassza ki a megfelelő
lakást
Írjon a hirdetőnek
Várjon a visszahívásra