Eladó lakás Szeged, Belváros, 46 930 000 Ft

Leírás

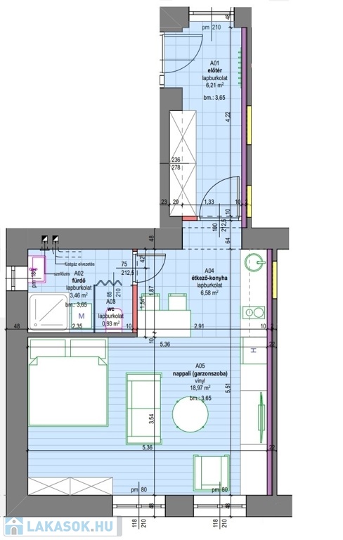
Szeged-Belváros, egyetemekhez közel, 34,76 nm-es, öt lakásos társasház magasföldszintjén, frissen, teljes körűen felújított, új építésnek megfelelő magas színvonalon kialakított, egyedi cirkó fűtésű, klimatizált téglagarzon eladó. Az alacsony rezsinek, a modern nyílászáróknak, kondenzációs kazánnak és az alacsony közös költségnek köszönhetően kedvezően alakul. Mosogatógép van. A lakáshoz tartozik egy udvari garázs, amely benne van a vételárban. A társasháznak hatalmas zöld udvara van. Ideális jövedelmező befektetésnek, első lakásnak, diáklakásnak egyaránt.

Lakás részletei

Ár: 46 930 000 Ft
Méret: 35 négyzetméter
Azonosító: 11580025
Cím: Petőfi Sándor sugárút
Városrész: Belváros
Emelet: Magasföldszint
Építőanyag: Tégla
Fűtés jellege: Cirkó
Ingatlan állapota: Kitűnő
Komfort fokozat: Összkomfort
Elhelyezkedés: Társasház
Tulajdonviszony: Saját
Kilátás: utcai
Egész szobák: 1

Egyéb jellemzők

  • Garázs
  • Klíma
  • Kertkapcsolat
  • Tároló
  • Kocsibeálló

Térkép


Így keressen lakást négy egyszerű lépésben. Csupán 2 perc, kötelezettségek nélkül!

Szűkítse a lakások
listáját
Válassza ki a megfelelő
lakást
Írjon a hirdetőnek
Várjon a visszahívásra