Eladó lakás Szeged 99 820 000 Ft

Leírás

1. emeleti erkélyes ÚJ ÉPTÉSŰ lakás ELADÓ!
Felsőváros új fejezete modern lakás, ahol az első nap is otthon!
Modern új építésű lakások, kiváló helyen minőségi kivitelezéssel!
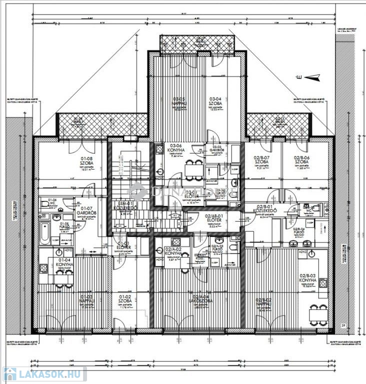
Az épület szintjei: földszint + két emelet + tetőtér beépítés.
Az épülő társasházban, összesen 12 modern lakás, egy üzlethelyiség, 4 garázs és autóbeállók épülnek.
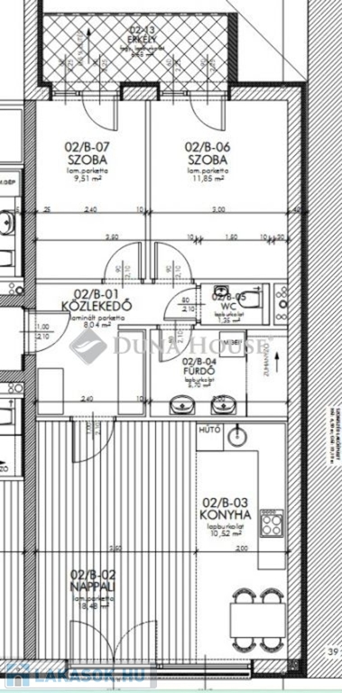
A lakás az első emeleten található, alapterülete: 71,3 nm
Helyiségei:
- nappali+konyha
- előtér
- közlekedő
- fürdő
- WC
- szoba
- szoba
- erkély
A lakáshoz vásárolható garázs, vagy autóbeálló!
Az épület korszerű kialakításának köszönhetően energiatakarékos és modern életstílust kínál, ideális választás fiatal családoknak, befektetőknek vagy vállalkozóknak egyaránt.- HOMLOKZATI FALAK 30 cm vtg. LEIERHERM 30 N+F VÁZKERÁMIÁS FALAZÓBLOKKBÓL KÉSZÜLNEK, HŐSZIGETELŐ HABARCSBA FALAZVA!- A HOMLOKZATON 10 cm AUSTROTHERM GRAFIT HŐSZIGETELÉS KERÜL BEÉPÍTÉSRE- A LAKÁSELVÁLASZTÓ FALAK 25 cm vtg. HANGGÁTLÓ TÉGLÁBÓL KÉSZÜLNEK, - A LAKÁSELVÁLASZTÓ FALAK EI-30 TŰZVÉDELMI TELJESÍTMÉNYŰEK!
A vételár a kulcsrakész állapotot tartalmazza.Birtokbavétel legkésőbb 2027.12.31-én lehetséges.
Kérdés esetén, vagy részletes tájékoztatásért, hívjon bizalommal!

Referencia szám: PR084576/LK/26557

Lakás részletei

Ár: 99 820 000 Ft
Méret: 71 négyzetméter
Azonosító: 11589578
Irodai azonosító: PR084576/LK/26557-5115395
Emelet: 1. emelet
Építőanyag: Tégla
Fűtés jellege: Hőszivattyú
Ingatlan állapota: Épülő
Komfort fokozat: Összkomfort
Építési év: Új építésű
Kilátás: panorámás
Egész szobák: 2
Fél szobák: 1

Egyéb jellemzők

  • Erkély
  • Klíma

Térkép


Így keressen lakást négy egyszerű lépésben. Csupán 2 perc, kötelezettségek nélkül!

Szűkítse a lakások
listáját
Válassza ki a megfelelő
lakást
Írjon a hirdetőnek
Várjon a visszahívásra