Eladó lakás Százhalombatta 113 750 000 Ft

Leírás


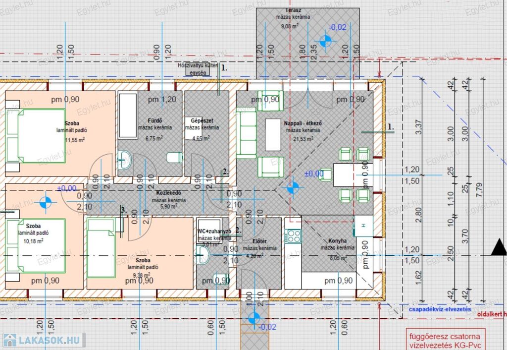
Százhalombattán, 400 m-re a központtól, a Csokonai utcában új építésű ikerházfél igényes kivitelezésre vágyó tulajdonosát keresi. A projekt keretében 2 db kertkapcsolatos, nappali + 3 hálószobás, duplakomfortos lakás kerül értékesítésre.



1. lakás: 94,4 m2 + terasz 9 m2 + 138 m2 saját használatú telek terület = 113.750.000 Ft

2. lakás: 94,4 m2 + terasz 9 m2 + 175 m2 saját használatú telek terület = ELKELT



Az aszfaltozott utcában elhelyezkedő összközműves telek utcafronti részén felújításra kerül egy meglévő családi ház, és az ikerház e mögött fog elhelyezkedni. Az ingatlan társasházként fog funkcionálni, tehát az albetétek saját helyrajzi számmal, LAKÁSKÉNT fognak szerepelni az ingatlannyilvántartásban.

Vasbeton sávalapon 30 cm-es Porotherm falazat nyugszik, fa födémmel, cserép héjalással, alul 12 cm, oldalt 15 cm, míg a födémen 30 cm-es fújt cellulóz szigeteléssel. A lakások között az elválasztó falak duplán vannak rakva (nincs áthallás), a kertrészek között és a padlástérben is biztosított a szeparáltság. Fontos kiemelni, hogy a lakásokba nem kerül bevezetésre a gáz. A fűtést, a hűtést és a használati meleg vizet Daikin hőszivattyú biztosítja 260L-es melegvíz tárolóval, az A+-os energetikai besorolást hővisszanyerős szellőztetőrendszer(!) biztosítja. A hőleadás helyiségenként szabályozható padlófűtéssel, illetve mennyezeti hűtés/fűtéssel történik. A szobákból így nem foglalnak helyet a radiátorok, nincs szükség klímára sem. A hőszivattyú működését napelemmel lehet segíteni, de ezek nem kerülnek felszerelésre, csupán előkészítésük lesz biztosítva az inverterig. A nyílászárók barna színű, 5 kamrás műanyag ablakok, 3 rétegű üvegezéssel. Hőhídmentes rejtett redőnytokok készülnek melyek elektromos alumínium redőnyt kapnak. A riasztó előkészítését az ár tartalmazza, de a rendszerét és a telepítését nem. Minden lakáshoz 1 db felszíni gépkocsi beálló tartozik, melyet motoros kapun keresztül lehet megközelíteni. A projekt, számos környékbeli referenciával rendelkező beruházó által lesz megvalósítva. A beruházó tőkeerős, nem a vevők pénzéből építi fel az ikerházat.Az építkezés elkezdődott és a tervezett ütemben halad.

Műszaki átadás 2026. április. A 100 MFt feletti vételár miatt az ingatlan NEM ALKALMAS Otthon Start hitelre, de Babaváró hitel, CSOK Plusz, Minősített Fogyasztóbarát hitel természetesen része lehet a fizetési konstrukciónak. Ha hasonló otthont keres, kérem, hívjon fel bizalommal akár hétvégén is, és bővebb tájékoztatást adok a megtekintés előtt. Képzett hitelközvetítő vagyok, készségesen állok rendelkezésére hitel ügyintézésben is.

Lakás részletei

Ár: 113 750 000 Ft
Méret: 94 négyzetméter
Azonosító: 11561405
Irodai azonosító: 209001994
Építőanyag: Tégla
Fűtés jellege: Geotermikus
Ingatlan állapota: Kitűnő
Komfort fokozat: Dupla komfort
Építési év: Új építésű
Egész szobák: 4

Egyéb jellemzők

  • Lift

Így keressen lakást négy egyszerű lépésben. Csupán 2 perc, kötelezettségek nélkül!

Szűkítse a lakások
listáját
Válassza ki a megfelelő
lakást
Írjon a hirdetőnek
Várjon a visszahívásra