Eladó lakás Szászberek 81 900 000 Ft

Leírás

A Szolnoki CasaNetWork Ingatlaniroda megvételre kínálja Szászbereken a Petőfi lakóparkban újépítésű, két lakásos társasházban kettő szintes lakást!

Szászberek Jász-Nagykun-Szolnok Vármegye dinamikusan  fejlődő települése, Szolnok 20 km, Budapest 100 km, az M4 autóút néhány perc menetidővel elérhető. Annak érdekében, hogy fejlett európai településsé emeljék Szászberket az önerő mellett pályázati forrásokat felhasználva fejlesztik az infrastruktúrát.

A közbiztonság kiemelkedően jó, a településen magas színvonalú általános iskola, óvoda, bölcsőde várja a kisgyermekes családokat is. 2019 évben átadták a Szászbereki Sportcsarnok épületét, valamint a műfüves futballpályát, így a sportolás szerelmesei helyben hódolhatnak szenvedélyüknek.

A hirdetési ár 50 % befizetése szerződéskötéskor.

A lakások átadási határideje: szerződéskötést követően 1 év.

Néhány jellemző az ingatlanról:

- a lakóparkban kettő két lakásos modern kivitelezésű társasház épül
- phorotherm 30 HS falazat, Austrotherm 15 cm hőszigetelés
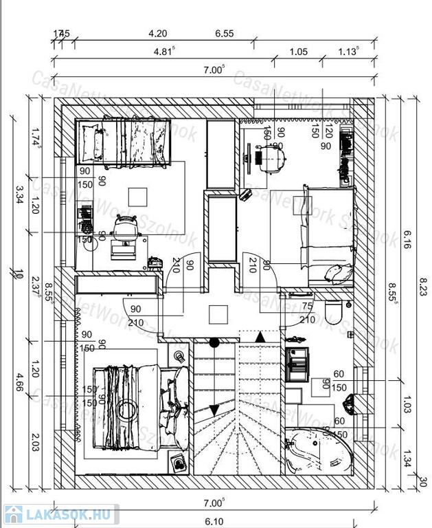
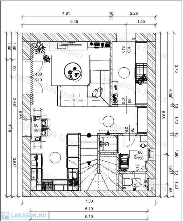
- a lakás 86 m2 alapterülettel, 17 m2 terasszal és 50 m2 autóbeállóval épül, kettő gépkocsi parkolására is alkalmas
- elosztását tekintve előtér, nappali, konyha-étkező, 3 szoba, 2 db fürdőszoba + wc, közlekedő, terasz
- belső kétszintes elrendezéssel
- hőszigetelt műanyag nyílászárók kerülnek beépítésre
- emeletenként egy-egy hűtő-fűtő klíma 
- a fűtést kondenzációs kazán fogja biztosítani, a földszinten padlófűtés, az emeleten radiátorok lesznek beépítve
- minden lakás saját, fizikailag elválasztott kertrésszel rendelkezik
- a burkolatokat a tulajdonos választhatja katalógusból

Mind a műszaki, technológiai megvalósítás, mind a belső terek kialakítása a mai kor igényeinek, elvárásainak megfelelő.

|A hirdetésben szereplő információk a megbízótól kapott adatok alapján készültek.|

Részletes műszaki leírás az irodánkban elérhető!

Amennyiben a hirdetésben szereplő új építésű társasházi lakás, vagy bármely, a kínálatunkban található ingatlan felkeltette érdeklődését, hívjon bizalommal!

Irodánk teljeskörű szolgáltatással áll ügyfelei rendelkezésére: hitelügyintézés, ügyvédi szolgáltatás, ingatlan értékbecslés, energetikai tanúsítvány készítése.

CasaNetWork - Ingatlanban otthon vagyunk!


Lakás részletei

Ár: 81 900 000 Ft
Méret: 103 négyzetméter
Azonosító: 11574437
Irodai azonosító: 155804637
Emelet: Földszint
Építőanyag: Tégla
Fűtés jellege: Cirkó
Ingatlan állapota: Kitűnő
Egész szobák: 4

Így keressen lakást négy egyszerű lépésben. Csupán 2 perc, kötelezettségek nélkül!

Szűkítse a lakások
listáját
Válassza ki a megfelelő
lakást
Írjon a hirdetőnek
Várjon a visszahívásra