Eladó lakás Siófok 75 600 000 Ft

Leírás

Új építésű, prémium minőségű lakások Siófok belvárosában!

Kiváló elhelyezkedés, magas műszaki tartalom és modern, energiatakarékos megoldások – mindez elérhető most Siófok szívében!

Az új építésű 12 lakásos társasházban már csak 4 lakás érhető el! Ne maradjon le róla!
Elérhető lakások:
1. lakás Földszint 56.26 m2 nettó lakótér - 75.600.000 Ft
2. lakás Földszint 48.25 m2 nettó lakótér + 14.00 m2 terasz - 73.900.000 Ft
3. lakás Földszint 41.67 m2 nettó lakótér + 14.00 m2 terasz - 65.000.000 Ft
4. lakás 1. emelet - ELKELT
5. lakás 1. emelet - ELKELT
6. lakás 1. emelet - ELKELT
7. lakás 1. emelet - ELKELT
8. lakás 2. emelet - ELKELT
9. lakás 2. emelet - ELKELT
10. lakás 2. emelet - ELKELT
11. lakás 2. emelet - ELKELT
12. lakás III. emelet 115.19 m2 nettó lakótér + 69.61 m2 terasz - 180.000.000 Ft

Mindegyik bármikor megtekinthető!

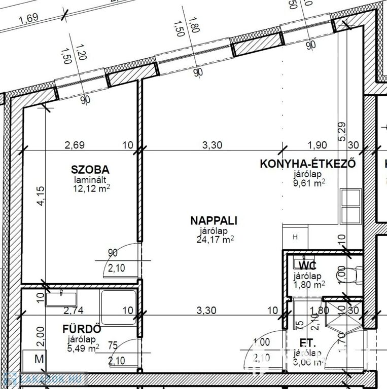
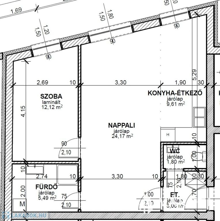
Ez a hirdetés a 1. lakás képeit és alaprajzát tartalmazza!
A lakás főbb paraméterei:
- Nettó alapterület: 56,26 m²
- Elrendezés: amerikai konyhás nappali, hálószoba, fürdőszoba, külön WC, előtér és terasz
- Földszinti elhelyezkedés, kiváló bútorozási lehetőségekkel
- Ideális választás egyedülállóknak, pároknak vagy akár irodai hasznosításra is

A projekt főbb jellemzői:
- Elhelyezkedés: Siófok belvárosa, a Balaton mindössze kb. 800 méterre
- Földszint + 3 emelet, liftes épület, korszerű építési technológiával
- 3 földszinti, 4-4 első és második emeleti, valamint egy zárószinti penthouse lakás
- A földszinti lakások közül több kertkapcsolatos, az emeletiek mind erkéllyel rendelkeznek
- Modern, hangulatos belső udvar, zárt közösségi térrel

Műszaki tartalom és felszereltség:
- Tégla falazat, 15 cm hőszigetelt homlokzat
- Hőszivattyús fűtés-hűtés H-tarifás támogatással
- Padlófűtés és mennyezeti hűtés minden lakásban
- Központi gázkazán a melegvíz-ellátáshoz, 500 literes tárolóval
- Napelemes rendszerrel felszerelt épület
- Háromrétegű üvegezésű, hő- és hangszigetelt nyílászárók
- Biztonsági bejárati ajtók
- Lakásonként külön szabályozható termosztát
- Lift

Lakástípusok:
- A kínálatban megtalálhatók kisebb, nappali + 1 hálós lakások, valamint tágasabb, akár 2-3 hálós családi otthonok is.
- A legtöbb lakás déli tájolású erkéllyel rendelkezik, így világos és napfényes tereket biztosít egész évben.
- Az egyik földszinti lakás 42 m² alapterületű, amely irodai hasznosításra is kiváló választás lehet.

Parkolás és tárolás:
- A ház déli oldalán 24 teremgarázs-beálló és zárt garázs áll rendelkezésre, opcionálisan megvásárolható tárolóhelyiségekkel.

További előnyök:
- Kiváló közlekedési és infrastrukturális adottságok
- A belváros és a Balaton-part néhány perc sétával elérhető
- Minőségi kivitelezés, modern stílus és gondosan megtervezett lakáselrendezések
- Akár 3%-os kamatozású kedvezményes hitellel is megvásárolható

Ne habozzon! Tegye meg az első lépést álmai ingatlanának megszerzése felé! Jöjjön el egy megtekintésre, és győződjön meg róla Ön is! Az ingatlan előzetes egyeztetéssel a hét minden napján megtekinthető. Amennyiben kérdése van, vagy időpontot egyeztetne, hívjon még ma!
Kár lenne kihagyni ezt a remek lehetőséget!
(További képekért és információkért kérem hívjon!)

Lakás részletei

Ár: 75 600 000 Ft
Méret: 56 négyzetméter
Azonosító: 11581667
Irodai azonosító: 595435
Építőanyag: Tégla
Fűtés jellege: Hőszivattyú
Ingatlan állapota: Kitűnő
Komfort fokozat: Összkomfort
Egész szobák: 2
Nappalik: 1

Egyéb jellemzők

  • Erkély
  • Garázs
  • Klíma
  • Lift
  • Pince
  • Kertkapcsolat

Így keressen lakást négy egyszerű lépésben. Csupán 2 perc, kötelezettségek nélkül!

Szűkítse a lakások
listáját
Válassza ki a megfelelő
lakást
Írjon a hirdetőnek
Várjon a visszahívásra