Eladó lakás Siófok 64 900 000 Ft

Leírás

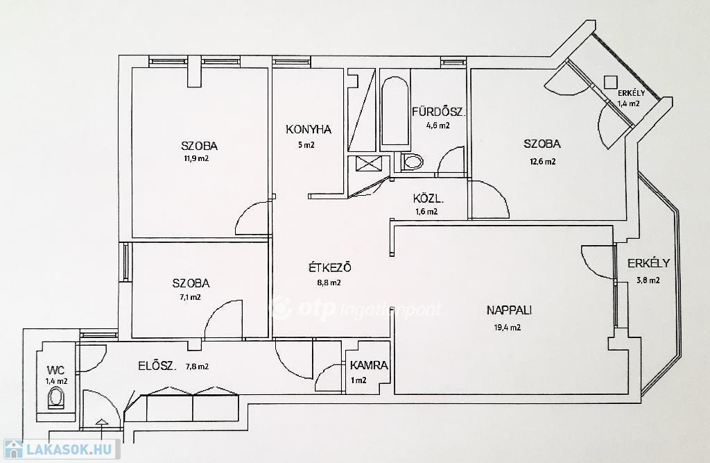
Balaton déli parton, Siófokon, 84 m2-es társasházi lakás eladó. A 3 egész és 1 fél szobával rendelkező ingatlan a Belvárosban, a központhoz közel helyezkedik el, 4. emeleten, dél-keleti tájolással. Az erkélyekről tájpanoráma látható. A lakás fűtése és meleg víz ellátása gázkazánról megoldott. A nappaliban egy nagy teljesítményű Fisher mobilklíma berendezés található, mely kül- és beltéri használatra egyaránt alkalmas. A bútorokat a tulajdonos grátisz adja a lakással. Az épület külső homlokzata a közelmúltban felújításra került. A padlástérben külön, leválasztott tárolórész tartozik a lakáshoz, a földszinten babakocsi-tároló, a szuterén szinten közös kerékpártároló áll rendelkezésre. Parkolás a zárt udvaron belül lakásonként 1 autó számára biztosított. A közelben iskola, óvoda, játszótér található. Víztorony 600 méter, vasútállomás, buszpályaudvar 500 méter, Balaton-part, Nagystrand 1000 méter, valamint a Debreceni Egyetem Siófoki Campus 1200 méter (gyalog 15 perc) távolságban van. Az ingatlan ideális családi otthonnak, de kiválóan alkalmas befektetésnek is: hosszútávú kiadásra az idén induló egyetemi campus miatt. Otthon Start Hitelprogram Bővebb információért, megtekintésért keressen telefonon!

Referencia szám: M288997

Lakás részletei

Ár: 64 900 000 Ft
Méret: 84 négyzetméter
Azonosító: 11433327
Irodai azonosító: M288997-4755039
Emelet: 4. emelet
Építőanyag: Kérdezzen rá a hirdetőtől »
Fűtés jellege: Cirkó
Ingatlan állapota:
Komfort fokozat: Összkomfort
Építési év: 21-50 éves
Kilátás: utcai
Egész szobák: 3
Fél szobák: 1

Egyéb jellemzők

  • Erkély
  • Kocsibeálló

Térkép


Így keressen lakást négy egyszerű lépésben. Csupán 2 perc, kötelezettségek nélkül!

Szűkítse a lakások
listáját
Válassza ki a megfelelő
lakást
Írjon a hirdetőnek
Várjon a visszahívásra