Eladó lakás Siófok 59 900 000 Ft

Leírás

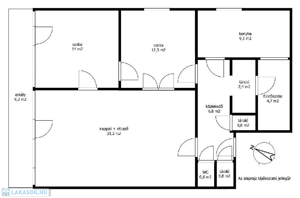
Balaton déli part, Siófok, 88 m2 lakás eladó. Az ingatlan Fokihegyen, egy társasház az első emeletén helyezkedik el, északnyugati fekvéssel, utcai kilátással, 700 méterre a szabadstrandtól. A 83 m2-es, hatalmas nappalival, két hálószobával rendelkező lakás lakóterét növeli egy 9 m2-es erkély, ahova két szobából is nyílik ajtó. Az egyedi mérőórákkal felszerelt, gáz-cirko kazánnal fűtött ingatlanban a nyílászárók és a radiátorok cseréje megtörtént, a további felújítások és átalakítási lehetőségek már az új tulajdonos igénye és ízlése szerint végezhetők el. A ház szigetelt, a garázshoz belső átjárási lehetőség biztosított. Óvoda, bölcsőde, iskola, bolt, egészségügyi intézmény, patika a közelben, könnyen elérhető. A lakáshoz megvásárolható, 12 M Ft-os, 21 m2-es garázs vételárát nem tartalmazza a hirdetési ár. A lakás mérete és belső kialakítása számos lehetőséget rejt magában, akár egy 4. szoba vagy külön étkező is leválasztható, más terek egybenyithatók. Ideális megoldás családoknak állandó lakhatásra, de nyaralásra vagy befektetésként kiadásra is kiváló lehetőség. Bővebb információért keressen telefonon! M304785

Referencia szám: M304785

Lakás részletei

Ár: 59 900 000 Ft
Méret: 86 négyzetméter
Azonosító: 11539824
Irodai azonosító: M304785-4956126
Emelet: 1. emelet
Építőanyag: Tégla
Fűtés jellege: Cirkó
Ingatlan állapota: Átlagos
Komfort fokozat: Összkomfort
Építési év: 50 évesnél régebbi
Kilátás: utcai
Egész szobák: 3

Egyéb jellemzők

  • Erkély
  • Garázs

Térkép


Így keressen lakást négy egyszerű lépésben. Csupán 2 perc, kötelezettségek nélkül!

Szűkítse a lakások
listáját
Válassza ki a megfelelő
lakást
Írjon a hirdetőnek
Várjon a visszahívásra