Eladó lakás Siófok 149 000 000 Ft

Leírás

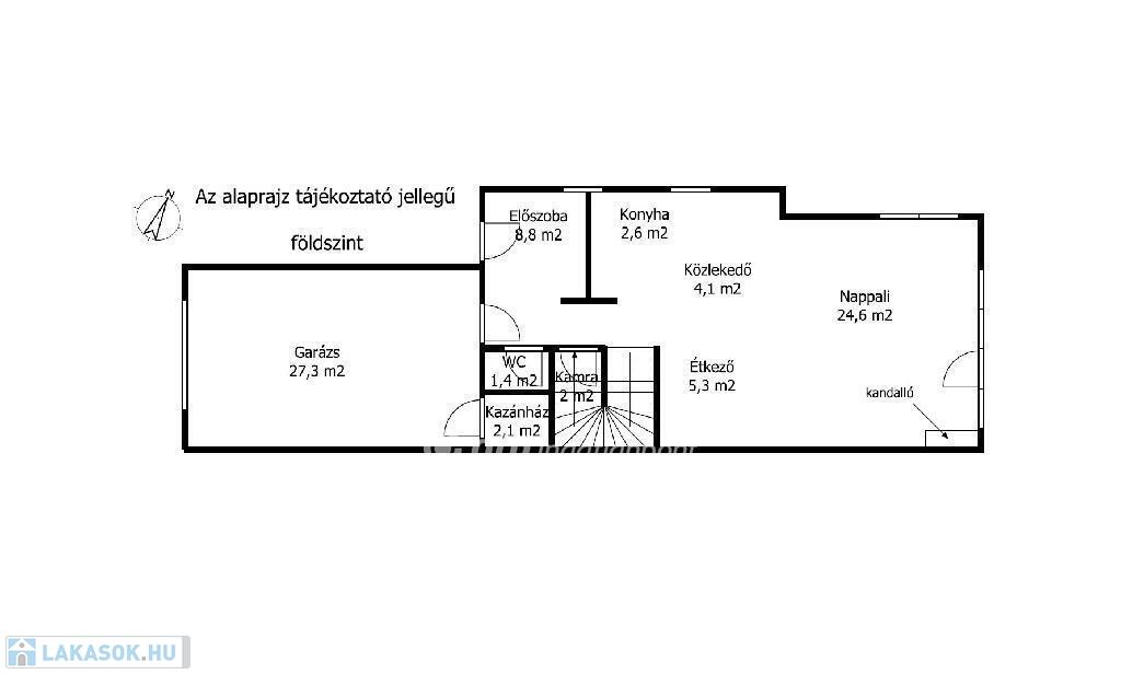
Siófok kedvelt Foki-hegy városrészében kínálom megvételre ezt az új építésű, igényes kivitelezésű ikerházfelet, amely a Balaton déli partjának egyik dinamikusan fejlődő környezetében helyezkedik el, 432 nm-es, saját használatú telekrészen, befejezett állapotban. Az ingatlan földszintjén tágas, amerikai konyhás nappali, emellett háztartási helyiség és éléskamra szolgálja a mindennapi kényelmet, míg az emeleti szinten három különálló hálószoba és három, magas műszaki tartalommal megvalósított fürdőszoba került kialakításra, továbbá lehetőség nyílik egy különálló, teljes értékű lakrész kialakítására is, akár kétgenerációs felhasználás céljából.

Az épület megtervezése során a kivitelező nagy hangsúlyt fektetett a minőségi alapanyagokra, amelyet a duplasoros SILKA hangszigetelő falazat, a porotherm 30-as külső falazat 15 cm hőszigeteléssel, valamint a háromrétegű üvegezésű nyílászárók is bizonyítanak. Az otthon komfortját a gázkazános padlófűtés, a négy darab hőszivattyús hűtő-fűtő klíma, a nappaliban található exkluzív, fatüzelésű kandalló, továbbá az elektromos redőnyökkel felszerelt nyílászárók, illetve az elektromos működtetésű garázs- és kertkapuk biztosítják, miközben a földszinti garázs mellett külön második gépkocsi-beállási lehetőség is rendelkezésre áll.

A három terasz - a Balatonra néző nyugati emeleti terasz, a hátsó emeleti pihenőrész, valamint a földszinti kertkapcsolatos terasz - kivételes lehetőséget nyújt a pihenésre és a balatoni hangulat mindennapos megélésére. Az ingatlan rendelkezik használatbavételi engedéllyel, tehermentes, azonnal birtokba vehető, így akár állandó lakhatásra, akár nyaralóként is ideális választás lehet, ráadásul az ikerház másik fele szintén elérhető azon érdeklődők számára, akik nagyobb családi vagy befektetési célban gondolkodnak. A közelben általános iskola és hipermarket is megtalálható, ami tovább növeli a lokáció értékét. Az OTP Bank stabil hátterének köszönhetően kollégáink díjmentes, személyre szabott hitel- és támogatási tanácsadással és ügyintézéssel állnak rendelkezésére.

Megtekintés egyeztetéséhez várom megtisztelő hívását.

Referencia szám: M317803

Lakás részletei

Ár: 149 000 000 Ft
Méret: 139 négyzetméter
Azonosító: 11581487
Irodai azonosító: M317803-5091840
Emelet: Földszint
Építőanyag: Tégla
Fűtés jellege: Cirkó
Ingatlan állapota: Épülő
Komfort fokozat: Összkomfort
Építési év: Új építésű
Kilátás: panorámás
Egész szobák: 4

Egyéb jellemzők

  • Erkély
  • Garázs

Térkép


Így keressen lakást négy egyszerű lépésben. Csupán 2 perc, kötelezettségek nélkül!

Szűkítse a lakások
listáját
Válassza ki a megfelelő
lakást
Írjon a hirdetőnek
Várjon a visszahívásra