Eladó lakás Siófok 120 000 000 Ft

Leírás

!!SIÓFOK ARANYPARTON MEDENCÉS, KANDALLÓS TÁRSASHÁZI LAKÁS!!
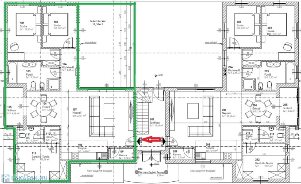
SIÓFOK ARANYPART frekventált és nyugalmas részén a Beszédes József sétányon, a Balaton parttól 30 méterre, 6 lakásos társas házban, földszinten elhelyezkedő, 107 m2 alapterületű, 4 szobás, télikerttel, KANDALLÓVAL és 16 m2 terasszal rendelkező, modern kialakítású lakás ELADÓ.

Az ingatlan magas színvonalú kivitelezéssel került újjáépítésre, a mai kor energetikai igényei alapján. A 3 szintes társas ház 944 m2 telken található, téglából épült, homlokzati szigeteléssel rendelkezik. A fűtést gázkazán, radiátor hőleadóval és hűtő-fűtő klíma biztosítja valamint a fa tüzelésű kandalló, amely egyedi hangulatú és praktikus. Műszaki paraméterei: szigetelt lemeztető, műanyag nyílászárók, fa beltéri ajtók, minőségi meleg és hidegburkolatok. A lakásban lévő berendezés a vételár részét képezi.

A 6 lakásos társasház rendezett, közös használatú udvarán található medence, és napozó terasz. A lakásokhoz 2 saját autóbeálló tartozik, melyek megvásárlása kötelező, ára 2x4.000.000,- Ft.

Az ingatlan elhelyezkedése tökéletes, a Balaton parti szabad strand néhány méterre található, a Petőfi sétány éttermei, kávézói és szórakozási lehetőség 15 perc séta távolságban elérhető.
Ezt a tökéletesen kivitelezett, kiváló helyen lévő ingatlant ajánlom azoknak, akik igényes családi otthont, négy évszakos nyaralót keresnek, hiszen biztosított generációkon keresztül értékállósága. Befektetőknek ajánlom a kiváló elhelyezkedés és értékállósága miatt.

A Balaton nyújtotta lehetőségek és a városközpont könnyen elérhetőek minden évszakban.

Hívjon bizalommal, ha az ajánlat felkeltette érdeklődését.

Lakás részletei

Ár: 120 000 000 Ft
Méret: 107 négyzetméter
Azonosító: 11448694
Irodai azonosító: 376227
Cím: Beszédes József sétány
Emelet: Földszint
Építőanyag: Tégla
Fűtés jellege: Cirkó
Ingatlan állapota: Kitűnő
Komfort fokozat: Összkomfort
Építési év: 1-5 éves
Tulajdonviszony: Saját
Kilátás: kertre néző
Egész szobák: 4

Egyéb jellemzők

  • Erkély
  • Garázs
  • Lift
  • Pince
  • Tároló

Térkép


Így keressen lakást négy egyszerű lépésben. Csupán 2 perc, kötelezettségek nélkül!

Szűkítse a lakások
listáját
Válassza ki a megfelelő
lakást
Írjon a hirdetőnek
Várjon a visszahívásra