Eladó lakás Sárvár 60 158 750 Ft

Leírás

Sárváron a termál fürdőtől 1 km-re, a Hatvany kastély közelében, kertvárosi környezetben, új építésű apartmanházban lakások eladók !

A városközpont közelsége, a zöld környezet, a forgalommentes mellékutca vagy a kis létszámú lakóközösség minden korosztály számára vonzó lehet. A 6 lakásos épületben 1-2-3 szobás apartmanok lesznek kialakítva, 648 m2 telken, közös kerttel, térkövezett gépkocsibeállókkal. A földszinti lakásokhoz kertkapcsolat, valamennyi ingatlanihoz opcionálisan gépkocsibeálló vásárolható.

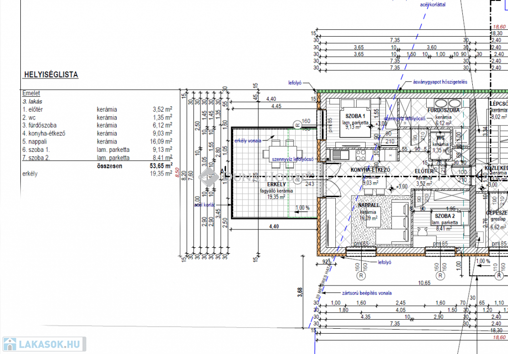
L3 lakás : Az első emeleti ingatlan 53.65 m2, 19.35 m2 részben fedett terasz tartozik hozzá kertre tájolt kilátással. Tágas, világos amerikai konyhás nappali, két hálószoba, fürdőszoba és külön wc kerül kialakításra.

A tervezés során fontos szempont volt a minőség, a költséghatékony fenntartás és a lakások értékállósága. Az épület fűtését, illetve meleg víz ellátását a kor igényeinek leginkább megfelelő, lakásonként egyedi kondenzációs-gázkazán biztosítja, egyedi méréssel és szabályozással, a hőleadás padlófűtéssel történik.

A projekt főbb jellemzői:

- nappali helyiségekbe beépített hűtő-fűtő klíma - termálfürdő közeli, frekventált elhelyezkedés, kis forgalmú mellékutcában - igényes, városképbe illő, klasszikus külső megjelenés - 6 prémium minőségű lakás változatos alaprajzokkal: 1 szobástól a 3 szobásig - fenntartható lakások, alacsony energiafelhasználás - fürdő és WC külön helyiségben a legtöbb lakásban - 3 rétegű nyílászárók, klíma - Választható belső burkolatok, szaniterek, ajtók - fsz.i lakásokhoz kert - felszíni gépkocsibeálló vásárolható OTTHONstart hitel - Családi Otthonteremtési Kedvezmény + Hitel igényelhető! - 5% Áfa, ami CSOK+-os vásárlás esetén visszaigényelhető - Teljes illetékmentesség CSOK+-os vásárlás esetén

Az építkezés a tervezett ütemben halad, az épület műszaki átadása: 2026. III. negyedévben valósul meg.
Naprakész információk a Duna House irodákban!
Friss eladási listáról érdeklődjön! Helyszínrajz, műszaki leírás, alaprajzok, lakás felszereltség, pontos tájékoztatás nálunk, keressen bizalommal !

Lakás részletei

Ár: 60 158 750 Ft
Méret: 63 négyzetméter
Azonosító: 11613802
Irodai azonosító: PR012723/LK/30205-5204405
Emelet: 1. emelet
Építőanyag: Tégla
Fűtés jellege: Cirkó
Ingatlan állapota: Épülő
Komfort fokozat: Összkomfort
Építési év: Új építésű
Kilátás: udvari
Egész szobák: 3

Egyéb jellemzők

  • Erkély
  • Klíma
  • Kocsibeálló

Térkép


Így keressen lakást négy egyszerű lépésben. Csupán 2 perc, kötelezettségek nélkül!

Szűkítse a lakások
listáját
Válassza ki a megfelelő
lakást
Írjon a hirdetőnek
Várjon a visszahívásra