Eladó lakás Salgótarján 16 200 000 Ft

Leírás

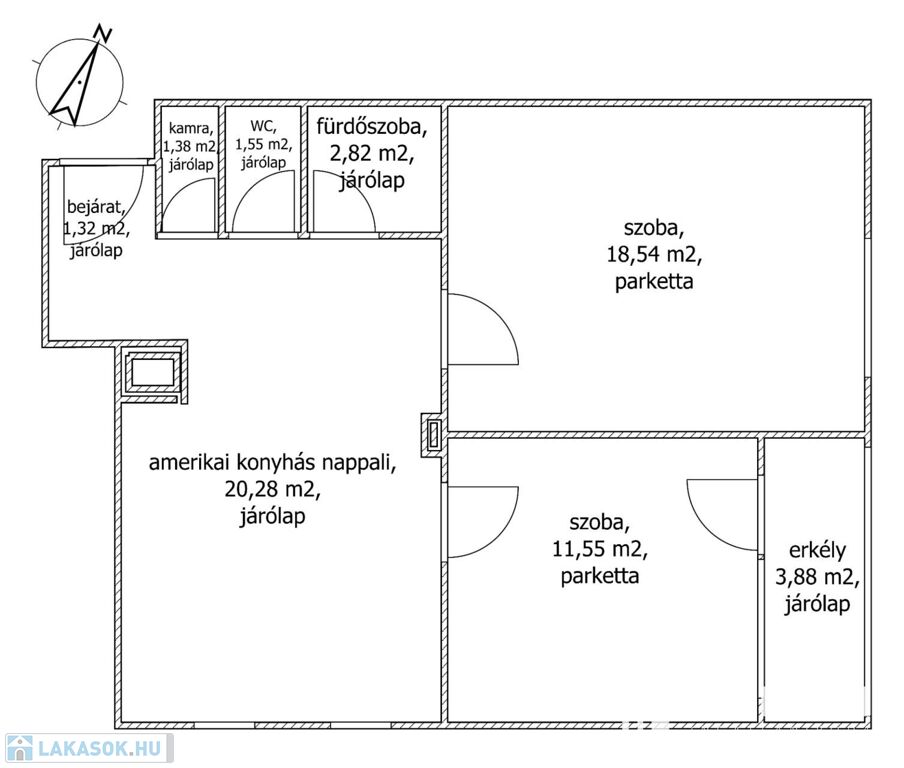
Ha szeretne egy igazán szép, igényesen kivitelezett, polgári stílusú otthont, elérhető áron, akkor ezt a lakást keresi! Ez a - régebben háromszobás - átalakítás után kétszobás - amerikai konyhás nagy nappalival rendelkező lakás biztosan megérinti. A belső terek elosztása, a lakás színei, a padlóburkolatok, és a lakás hangulata egyaránt szolgálják a minőségi életérzést. A fűtést gázkonvektor, a melegvizet átfolyós gáz-vízmelegítő biztosítja. A közös költség alacsony, az ablakok korszerű műanyag nyílászárók. Az erkély tágas és jól kihasználható. A lépcsőház tiszta, rendezett, kaputelefonos beléptető rendszerrel ellátott.
A ház saját parkolóhelyekkel rendelkezik, de lehetőség van egy ház melletti garázs kedvező áron történő megvásárlására is! Közvetlenül az otthona mellett!
A házban jelenleg kevesen laknak, elsősorban idős korúak, épp ezért nyugodt, békés, csendes környezetben élhet. A közeli erdő békéje annyira meghitt, és zavartalan, hogy sokszor az ablakból, vagy az erkélyről is lehet figyelni hajnalban az erdő szélén sétáló őzeket és szarvasokat.
Ezt a négy emeletes társasházat a hetvenes években az Acélgyár vezetői számára építették, ennek köszönhetően, a lakások időt álló, jó minőségben, a korabeli átlagtól nagyobb alapterülettel, kedvező elosztással épültek meg. Ez az ingatlan a közelmúltban teljesen fel lett újítva, minőségi anyagokkal, dekoratív konyhabútorral. A padló, a szobák kivételével, nagy, tetszetős járólapokkal lett burkolva, a szobákban nagy elemes, keményfa parketta van lerakva, biztosítva az otthonosságot, és az időt álló minőséget.
Aki ebbe a lakásba belép, azt magával ragadja a hangulata. Egy külön világba csöppen, ahol az elegancia és a minőség uralkodik, miközben csendes nyugalom veszi körbe, és bárhová néz, gyönyörködteti a szemét. Akár berendezéssel együtt is megvásárolhatja! Pár száz méterre ugyanezért a színvonalért másfél-kétszer ennyit kell fizetni! Ezért az árért sehol máshol nem kap ilyen jó minőségű ingatlant a városban. Valószínűleg az országban sem! Jöjjön el, nézze meg, bele fog szeretni!
Érdeklődni a +36 70 423 1304-es telefonszámon lehet.
(További képekért és információkért kérem hívjon!)

Lakás részletei

Ár: 16 200 000 Ft
Méret: 61 négyzetméter
Azonosító: 11548780
Irodai azonosító: 833787
Erkély mérete: 4.00 négyzetméter
Építőanyag: Tégla
Fűtés jellege: Távfűtés
Ingatlan állapota: Felújított
Komfort fokozat: Összkomfort
Egész szobák: 3
Nappalik: 2

Egyéb jellemzők

  • Erkély
  • Garázs
  • Klíma
  • Lift
  • Pince
  • Kertkapcsolat

Így keressen lakást négy egyszerű lépésben. Csupán 2 perc, kötelezettségek nélkül!

Szűkítse a lakások
listáját
Válassza ki a megfelelő
lakást
Írjon a hirdetőnek
Várjon a visszahívásra