Eladó lakás Pécs 92 284 000 Ft

Leírás

Ez az ingatlan kiváló lehetőség azok számára, akik egy új, magas minőségű lakásban szeretnének élni közel az egyetemhez és az összes fontos városi infrastruktúrához.

A hőszivattyús fűtési rendszer és a padlófűtés költséghatékony megoldást kínál a lakók számára, csökkentve a havi rezsi költségeket, miközben fenntartja a lakás kellemes hőmérsékletét. A modern és energiatakarékos megoldásokkal felszerelt ingatlan nem csak kényelmes, hanem környezetbarát is.

A lakás elhelyezkedése ideális választás lehet diákoknak, párnak vagy akár befektetőknek is, akik értékelik az egyetem közelségét és az aktív városi életet. Egyetemváros dinamikus környezete, a közelben található üzletek, kávézók és éttermek mind hozzájárulnak az ingatlan vonzerejéhez.

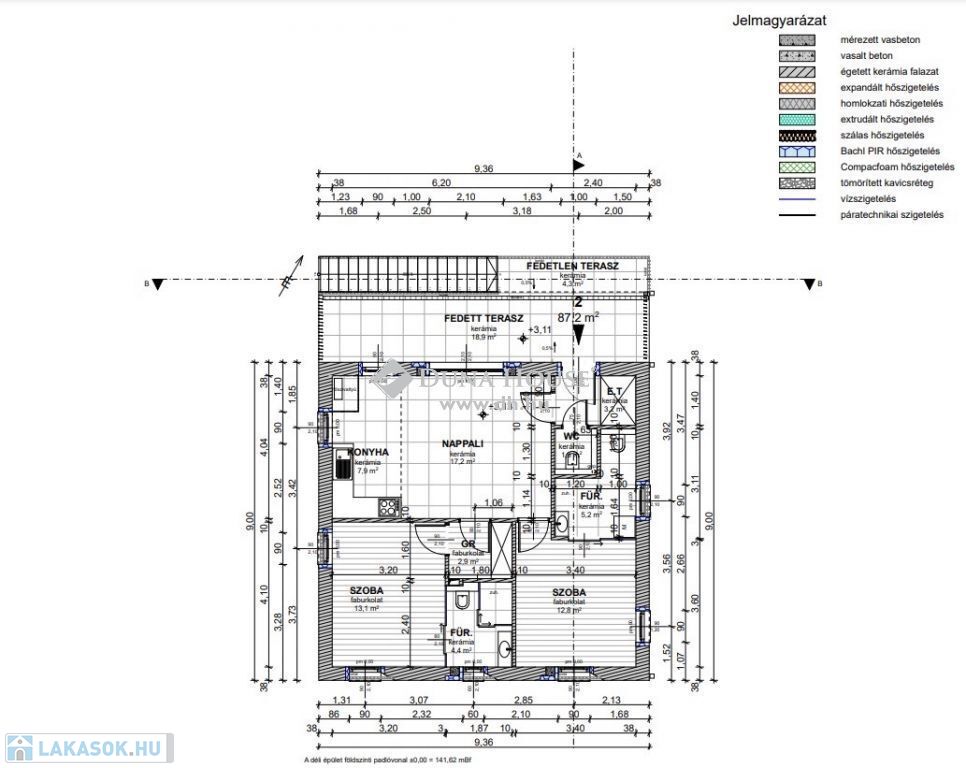
Két hálószoba és két fürdőszoba teszi kényelmessé a mindennapokat. A lakáshoz tartozik egy fedett terasz ami kiváló helyszín a relaxáláshoz, baráti összejövetelekhez vagy egy nyugodt reggeli kávézáshoz a friss levegőn.

Eladó új építésű, 87 m²-es tégla építésű lakás egyetemváros frekventált részén. Az ingatlan modern és praktikus kialakítást kapott, amely tökéletesen ötvözi a kényelmet és az eleganciát. A négy lakásos társasház belső udvarán parkolóhely biztosított.

A lakás belső terei még igény esetén módosíthatóak!

Lakás részletei

Ár: 92 284 000 Ft
Méret: 87 négyzetméter
Azonosító: 11505320
Irodai azonosító: LK065131-4693383
Cím: Pécsi eladó 87 nm-es lakás
Emelet: Földszint
Építőanyag: Tégla
Fűtés jellege: Hőszivattyú
Ingatlan állapota: Épülő
Építési év: Új építésű
Kilátás: udvari
Egész szobák: 3

Egyéb jellemzők

  • Kocsibeálló

Térkép


Így keressen lakást négy egyszerű lépésben. Csupán 2 perc, kötelezettségek nélkül!

Szűkítse a lakások
listáját
Válassza ki a megfelelő
lakást
Írjon a hirdetőnek
Várjon a visszahívásra