Eladó lakás Pécs 91 200 000 Ft

Leírás

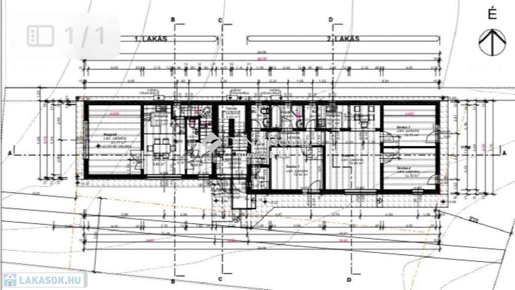
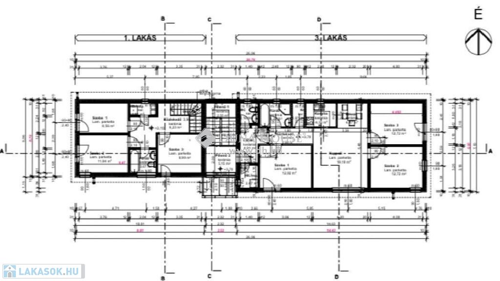
Pécs Újhegyen – SÍP rendszerű Prémium Lakások eladók!

Egy 609 m2-es telken épülő 3 lakásos társasházban kínáljuk Önnek a jövő otthonát: 96 m2-es, nappali + három szobás, modern technológiával készülő ingatlant.
Néhány jellemző :
Napelem rendszer
Hőszivattyús fűtés, padlófűtés és mennyezet hűtéssel garantált komfort érzet
Saját kertkapcsolat, gépkocsi beállóval
Egyedi hőtechnikai megoldások, amelyek jelentős energia megtakarítást tesznek lehetővé.
Első osztályú műanyag nyílászárók
Egyedi választási lehetőségek a belső kialakítás során
Mindezt egy megbízható, több évtizedes építőipari tapasztalattal rendelkező generál kivitelezőtől kapja, garantálva az Ön elégedettségét és az épület tartósságát.
Várható átadás: 2024. II. negyedév.
Ne maradjon le erről a kivételes lehetőségről! Találja meg álmai otthonát Pécsett!
Használja ki még idén a meglévő állami támogatásokat!
További részletekért keressen bizalommal!

Lakás részletei

Ár: 91 200 000 Ft
Méret: 96 négyzetméter
Azonosító: 11612504
Irodai azonosító: LK084149-4475818
Cím: Pécsi 96 nm-es lakás eladó
Emelet: Földszint
Építőanyag: Könnyűszerkezet
Fűtés jellege: Hőszivattyú
Ingatlan állapota: Épülő
Komfort fokozat: Összkomfort
Építési év: Új építésű
Kilátás: utcai
Egész szobák: 4

Egyéb jellemzők

  • Klíma
  • Tároló
  • Kocsibeálló

Térkép


Így keressen lakást négy egyszerű lépésben. Csupán 2 perc, kötelezettségek nélkül!

Szűkítse a lakások
listáját
Válassza ki a megfelelő
lakást
Írjon a hirdetőnek
Várjon a visszahívásra