Eladó lakás Pécs 90 500 000 Ft

Leírás

Pécs belvárosában, az ikonikus Király utcában, de egy ősfás, zárt, nagy udvarban eladó ez a sok lehetőséget tartogató, jelenleg építészirodaként funkcionáló, de akár két teljesen külön lakás kialakítására is alkalmas, 2012-ben felújított ingatlan.

Az ingatlan főbejáratán egy tágas előtérben találjuk magunkat (ez akár váróként is hasznosítható, ha arra szükség lenne). Innen nyílik a földszinti lakrész, valamint egy lépcsőn innen lehet felmenni a felső lakrészbe.
Az alsó lakrész felé egy előtér/előszoba fogad minket, ahonnan már a legnagyobb légtérbe jutunk. Innen nyílik egy kisebb szoba (saját kijárattal az udvarra), melyhez egy kisebb gardrób is tartozik, valamint egy pihenősarkon/közlekedőn át a konyha és a fürdőszoba felé indulhatunk. Ezen alsó lakrész egy teljesen önálló lakásként is funkcionálhat.

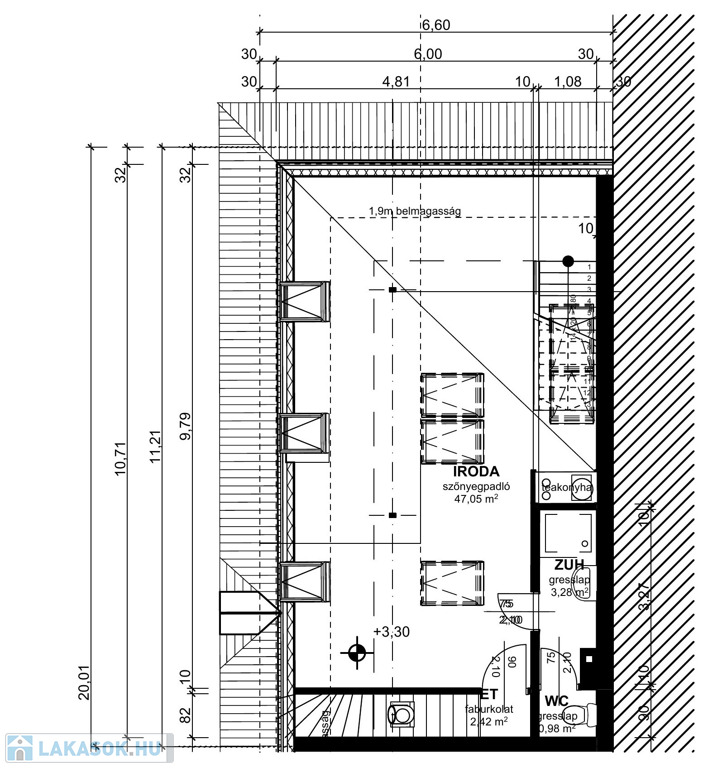
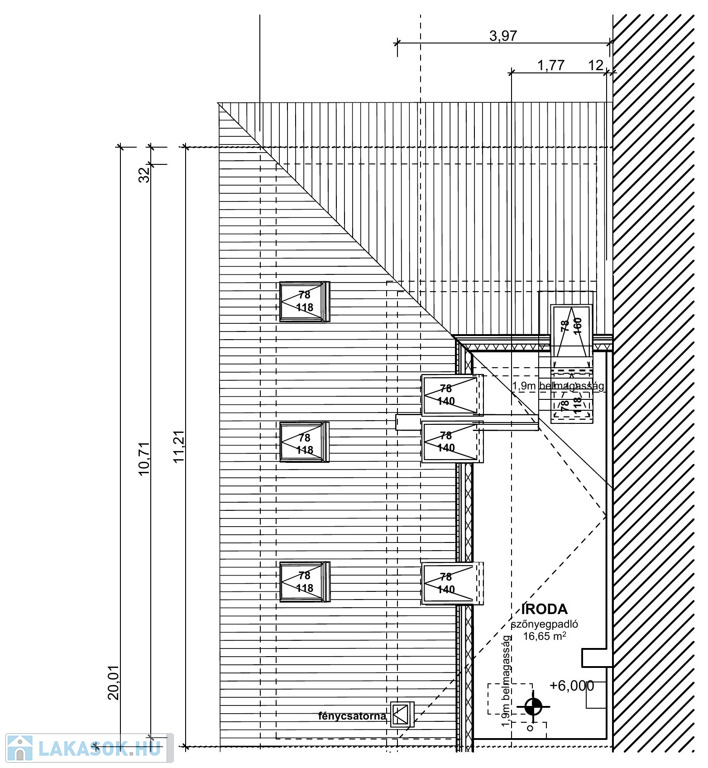
Az előtérből a lépcsőn felfelé indulva találjuk a fenti, nagyobb lakrészt, ahova belépve egy hatalmas, egy légterű, jelenleg irodaként működő helyiségben találjuk magunkat. Ebben a légtérben a tetőtérbe vezető lépcső alatt lett kialakítva egy praktikus kis konyharész. Ebből a légtérből nyílik a fürdő/wc is. Egy szépen kivitelezett fa lépcsőn tudunk a tetőtérbe feljutni, mely akár egy elszeparált külön egység (iroda, háló) is lehet. Ez a felső lakrész is lehetőséget kínál egy önálló lakás kialakítására, a nagy légterű irodarészt akár több szobává is át lehet alakítani.

Jó hír, hogy igény esetén a lehetséges átalakításra ingyenes belsőépítészeti tanácsadást kap a leendő tulajdonos.

A hirdetéshez mellékeltük az ingatlanról készült virtuális bemutatót, melynek segítségével virtuálisan bejárhatja azt, de itt találja az alaprajzot is, melyben minden méretet is megtalál.
https://my.matterport.com/show/?m=VUMjTC4Zrru

Az ingatlan mindkét szintjét a jelenlegi bérlők tovább bérelnék, így a befektetési célú hasznosításra egy opció már adott.

Komoly érdeklődés esetén, ingyenes belsőépítészeti tanácsadással!

Lakás részletei

Ár: 90 500 000 Ft
Méret: 133 négyzetméter
Azonosító: 11585906
Irodai azonosító: 346600
Cím: Király utca
Emelet: Földszint
Építőanyag: Tégla
Fűtés jellege: Egyéb
Ingatlan állapota: Felújított
Komfort fokozat: Összkomfort
Egész szobák: 5
Fél szobák: 1

Egyéb jellemzők

  • Erkély
  • Lift
  • Kertkapcsolat

Így keressen lakást négy egyszerű lépésben. Csupán 2 perc, kötelezettségek nélkül!

Szűkítse a lakások
listáját
Válassza ki a megfelelő
lakást
Írjon a hirdetőnek
Várjon a visszahívásra