Eladó lakás Pécs 109 757 813 Ft

Leírás

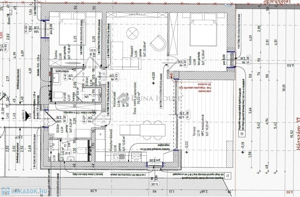
Exkluzív ÚJ ÉPÍTÉSŰ lakások a belvároshoz közel mégis csendes családi házas környéken!Pécs- Ispitaalja belvároshoz közeli részén eladó egy ÚJ ÉPÍTÉSŰ, 2/földszinti, 76m2-es, amerikai konyha nappali+2 szoba, fürdő-wc,mosdó, 16m2-es terasz elosztású, padlófűtéses tégla lakás magas műszaki tartalommal 4 lakásos társasházban!Szaniterek és burkolatok még választhatók!Extrák:- klíma- mozgásérzékelőkkel ellátott riasztóberendezés- videós kaputelefon- hőtárolós, energiatakarékos, applikációval vezérelhető kombi kondenzációs gázkazán padlófűtéssel helyiségenkénti wifiről is vezérelhető okos termosztáttal- világos szürke színű alumínium külső nyílászárók 3 rétegű ClimaGuardos üvegezéssel, motoros-, távirányítóval vezérelhető alumínium redőny szúnyoghálókkalVárható átadás: 2026 szeptemberZárt udvari parkoló és tároló vásárolható!

Referencia szám: LK021022

Lakás részletei

Ár: 109 757 813 Ft
Méret: 84 négyzetméter
Azonosító: 11607991
Irodai azonosító: LK021022-5182601
Cím: Eladó 84 nm-es lakás Pécs
Emelet: Földszint
Építőanyag: Szilikát
Fűtés jellege: Cirkó
Ingatlan állapota: Épülő
Építési év: Új építésű
Egész szobák: 3

Egyéb jellemzők

  • Erkély

Térkép


Így keressen lakást négy egyszerű lépésben. Csupán 2 perc, kötelezettségek nélkül!

Szűkítse a lakások
listáját
Válassza ki a megfelelő
lakást
Írjon a hirdetőnek
Várjon a visszahívásra