Eladó lakás Pécs 109 900 000 Ft

Leírás

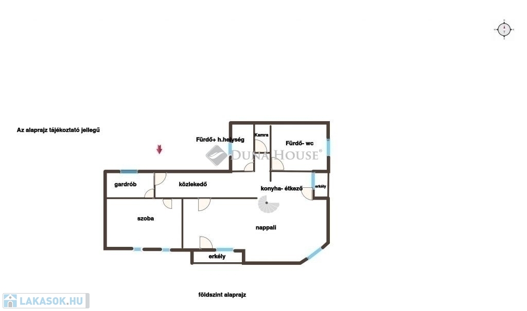
Eladó belvárosi, tágas téglalakás Pécs szívében!Pécs belvárosában kínálunk megvételre egy 102 nm-es, galériás téglalakást, amely tökéletes választás lehet családoknak vagy akár befektetés céljára is.Az ingatlan főbb jellemzői:- Amerikai konyhás nappali + 3 szoba- 2 fürdőszoba, 2 Wc- 2 erkély, amelyek kellemes kikapcsolódási lehetőséget biztosítanak- gáz- cirkó fűtés, alacsony fenntartási költséggel- tágas, világos terek és praktikus elosztás; galériás kialakítás, ami különleges hangulatot kölcsönöz az otthonnak.Az ingatlan kiváló elhelyezkedésének köszönhetően minden fontos szolgáltatás, bolt iskola, egyetem, valamint belváros pezsgő élete néhány perc sétával elérhető.Amennyiben egy egyedi, jól alakítható, nagy alapterületű belvárosi otthont keresel, ez a lakás remek lehetőség!

Lakás részletei

Ár: 109 900 000 Ft
Méret: 102 négyzetméter
Azonosító: 11569805
Irodai azonosító: LK053503-5048772
Cím: Pécsi eladó 102 nm-es lakás
Emelet: 3. emelet
Építőanyag: Tégla
Fűtés jellege: Cirkó
Ingatlan állapota: Kitűnő
Építési év: 21-50 éves
Egész szobák: 4

Egyéb jellemzők

  • Erkély

Térkép


Így keressen lakást négy egyszerű lépésben. Csupán 2 perc, kötelezettségek nélkül!

Szűkítse a lakások
listáját
Válassza ki a megfelelő
lakást
Írjon a hirdetőnek
Várjon a visszahívásra