Eladó lakás Pécs 109 900 000 Ft

Leírás

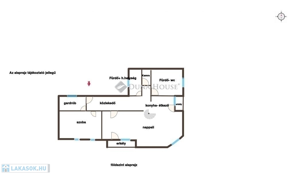
Eladó belvárosi, tágas téglalakás Pécs szívében!Pécs belvárosában kínálunk megvételre egy 102 nm-es, galériás téglalakást, amely tökéletes választás lehet családoknak vagy akár befektetés céljára is. Az ingatlan főbb jellemzői:- Amerikai konyhás nappali + 3 szoba- 2 fürdőszoba, 2 Wc- 2 erkély, amelyek kellemes kikapcsolódási lehetőséget biztosítanak- gáz- cirkó fűtés, alacsony fenntartási költséggel- tágas, világos terek és praktikus elosztás - galériás kialakítás, ami különleges hangulatot kölcsönöz az otthonnak.Az ingatlan kiváló elhelyezkedésének köszönhetően minden fontos szolgáltatás, bolt iskola, egyetem, valamint a belváros pezsgő élete néhány perc sétával elérhető.Amennyiben egy egyedi, jól alakítható, nagy alapterületű belvárosi otthont keresel, ez a lakás remek lehetőség!

Lakás részletei

Ár: 109 900 000 Ft
Méret: 102 négyzetméter
Azonosító: 11569801
Irodai azonosító: LK053503-5047268
Cím: Pécsi 102 nm-es lakás eladó
Emelet: 3. emelet
Építőanyag: Tégla
Fűtés jellege: Cirkó
Ingatlan állapota: Kitűnő
Építési év: 21-50 éves
Egész szobák: 4

Egyéb jellemzők

  • Erkély

Térkép


Így keressen lakást négy egyszerű lépésben. Csupán 2 perc, kötelezettségek nélkül!

Szűkítse a lakások
listáját
Válassza ki a megfelelő
lakást
Írjon a hirdetőnek
Várjon a visszahívásra