Eladó lakás Pécs 101 430 000 Ft

Leírás

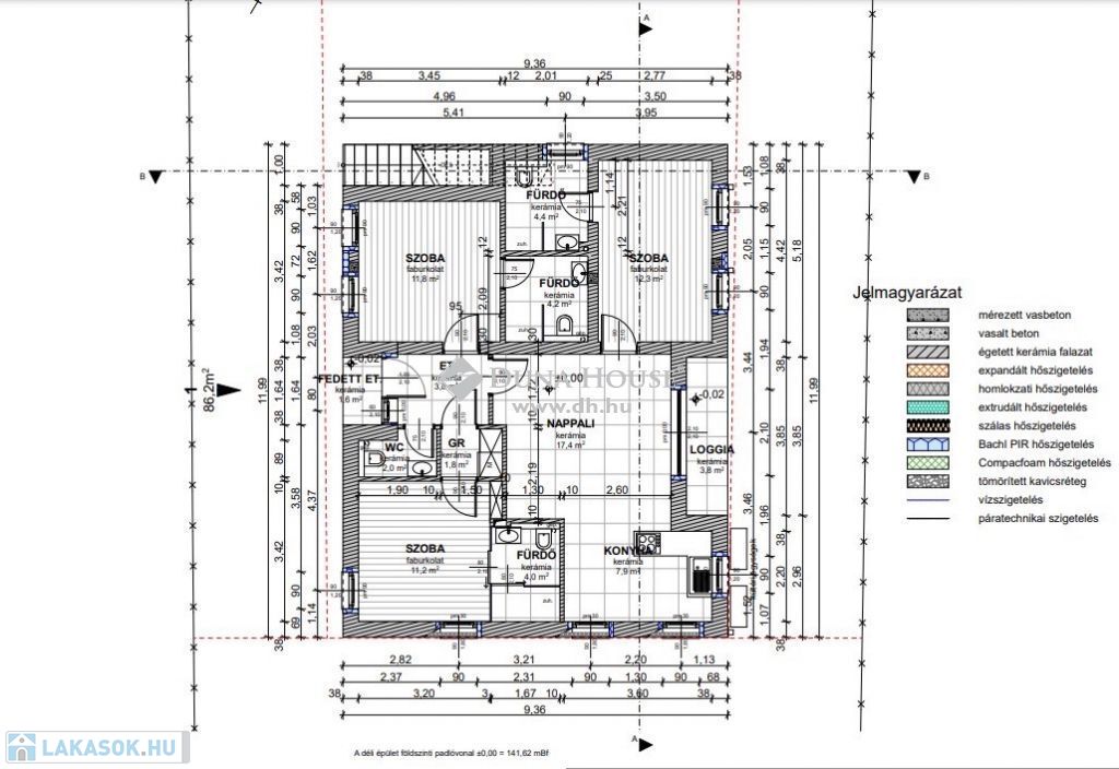
Eladó új építésű, 86 m²-es tégla építésű lakás egyetemváros frekventált részén saját 80m2-es udvarral.

Ez az ingatlan kiváló lehetőség azok számára, akik egy új, magas minőségű lakásban szeretnének élni közel az egyetemhez és az összes fontos városi infrastruktúrához.

A hőszivattyús fűtési rendszer és a padlófűtés költséghatékony megoldást kínál a lakók számára, csökkentve a havi rezsi költségeket, miközben fenntartja a lakás kellemes hőmérsékletét. A modern és energiatakarékos megoldásokkal felszerelt ingatlan nem csak kényelmes, hanem környezetbarát is.

A lakás elhelyezkedése ideális választás lehet diákoknak, párnak vagy akár befektetőknek is, akik értékelik az egyetem közelségét és az aktív városi életet. Egyetemváros dinamikus környezete, a közelben található üzletek, kávézók és éttermek mind hozzájárulnak az ingatlan vonzerejéhez.

Három hálószoba és három fürdőszoba teszi kényelmessé a mindennapokat. A lakáshoz tartozik egy fedett terasz ami kiváló helyszín a relaxáláshoz, baráti összejövetelekhez vagy egy nyugodt reggeli kávézáshoz a friss levegőn.

Eladó új építésű, 86 m²-es tégla építésű lakás egyetemváros frekventált részén saját 80m2-es udvarral.A négy lakásos társasház belső udvarán parkolóhely biztosított.

A lakás belső terei még igény esetén módosíthatóak!

Lakás részletei

Ár: 101 430 000 Ft
Méret: 86 négyzetméter
Azonosító: 11446694
Irodai azonosító: LK012688-4693395
Emelet: Földszint
Építőanyag: Tégla
Fűtés jellege: Hőszivattyú
Ingatlan állapota: Épülő
Építési év: Új építésű
Kilátás: udvari
Egész szobák: 4

Egyéb jellemzők

  • Kocsibeálló

Térkép


Így keressen lakást négy egyszerű lépésben. Csupán 2 perc, kötelezettségek nélkül!

Szűkítse a lakások
listáját
Válassza ki a megfelelő
lakást
Írjon a hirdetőnek
Várjon a visszahívásra